Industrial park to lease
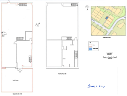
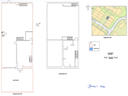
Unit 12, Hawthorn Road, Eastbourne, East Sussex, BN23 6QA
- SIZE AVAILABLE
3,805 sq ft
353 sq m
- SECTOR
Industrial park to lease
Lease details
- Lease available date:
- Now
Key features
- Mid-terrace industrial warehouse unit
- Popular trading location off Lottbridge Drove
- Trade counter
- First floor showroom / office
- Rear mezzanine storage
- Allocated parking
- 3 phase power and gas supply
- New lease at £28,000 per annum exclusive
Description
Popular trading location off Lottbridge Drove
Trade counter
First floor showroom / office
Rear mezzanine storage
Allocated parking
3 phase power and gas supply
Energy Performance Certificates
EPC CertificateBrochures
Unit 12, Hawthorn Road, Eastbourne, East Sussex, BN23 6QA
NEAREST STATIONS
Distances are straight line measurements from the centre of the postcode- Hampden Park Station1.0 miles
- Eastbourne Station1.7 miles
- Pevensey & Westham Station2.1 miles
Notes
Disclaimer - Property reference 15883LH. The information displayed about this property comprises a property advertisement. Rightmove.co.uk makes no warranty as to the accuracy or completeness of the advertisement or any linked or associated information, and Rightmove has no control over the content. This property advertisement does not constitute property particulars. The information is provided and maintained by SHW, East Sussex. Please contact the selling agent or developer directly to obtain any information which may be available under the terms of The Energy Performance of Buildings (Certificates and Inspections) (England and Wales) Regulations 2007 or the Home Report if in relation to a residential property in Scotland.
Map data ©OpenStreetMap contributors.





