Sandringham Manor, Apartment 14, The Grange, Mansfield

- PROPERTY TYPE
Apartment
- BEDROOMS
2
- BATHROOMS
1
- SIZE
729 sq ft
68 sq m
Key features
- Exceptional New Homes Development
- 57 Bungalows & 15 Apartments
- Striking Contemporary Design
- Carpets & LVT Flooring Included
- Integrated Appliances Included
- First Floor Apartment 14: 729 Sq Ft
- Two Double Bedrooms / One Parking Space
- Open Plan Living/Dining/Kitchen
- Front West Facing Balcony
- Walking Distance to Excellent Facilities
Description
A superb development of 15 one and two bedroom apartments for the over 55’s with a lift. The apartments form part of The Grange development of 57 bungalows and 15 apartments of striking contemporary design, situated in a desirable suburban location off Sandhurst Avenue within walking distance to excellent facilities.
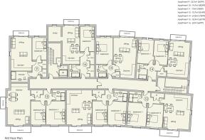
Apartment 14: 729 sq ft. A first floor apartment occupying a corner position, comprising an entrance hall, airing cupboard, open plan living/dining/kitchen with access to a front west facing balcony, two double bedrooms and a shower room.
The property comes with carpets and LVT flooring, fitted wardrobes to bedroom one, integrated appliances to include an oven, hob, extractor hood, dishwasher, fridge/freezer and a washer/dryer, electric storage heaters, UPVC double glazing and a 10-year Premier Guarantee Warranty.
Externally, there is a front west facing balcony, communal gardens and one allocated parking space.
The property has a 999 year lease. Service charge for maintenance and upkeep to the internal and external communal areas are paid to the managing agent: Block Property Solutions of approximately £1,545 per annum plus an additional estate charge of approximately £191 per annum. Peppercorn ground rent.
This is an extremely rare opportunity to acquire a brand new apartment ideally suited to downsizers, couples or single occupiers looking for modern, low maintenance living.
A COMMUNAL FRONT ENTRANCE DOOR PROVIDES ACCESS THROUGH TO THE:
Communal Entrance Hall - 7.52m x 2.41m (24'8" x 7'11") - With stairs and lift to the first floor. Automatic lighting. Connecting door to:
Communal Inner Hallway - 22.91m x 1.83m (75'2" x 6'0") - With automatic lighting.
Apartment 14 (First Floor) -
Entrance Hall - 3.56m max x 2.77m (11'8" max x 9'1") - An L-shaped hallway with electric storage heater, LVT flooring and consumer unit.
Airing Cupboard - 2.08m x 0.79m (6'10" x 2'7") - With power and light point, LVT flooring and Stiebel Eltron hot water cylinder.
Open Plan Living/Dining/Kitchen - 6.65m x 3.94m (21'10" x 12'11") - Having modern wall cupboards, base units and drawers complemented by quartz work surfaces and matching upstands. Under mount 1 1/2 bowl stainless steel sink with drainer and mixer tap/boiling hot tap. Integrated Bosch single electric oven, four ring induction hob and extractor hood above. Integrated fridge/freezer and integrated dishwasher. Six ceiling spotlights, LVT flooring, electric storage heater, television point, telephone point, floor-to-ceiling double glazed window to the side elevation and double glazed sliding patio doors to the front elevation leading out onto the patio garden.
Bedroom 1 - 4.55m x 2.82m (14'11" x 9'3") - The first of two double bedrooms, having fitted wardrobes with double hanging rails and shelving. Electric storage heater, television point and two floor-to-ceiling double glazed windows to the front elevation.
Bedroom 2 - 4.52m x 2.64m max (14'10" x 8'8" max) - With electric storage heater, television point and double glazed window to the front elevation.
Shower Room - 2.77m x 1.93m (9'1" x 6'4") - Having a modern three piece white suite comprising a large tiled shower enclosure with rainfall shower plus additional shower attachment. Vanity unit with inset wash hand basin with swan-neck mixer tap and storage cupboard beneath. Low flush WC with enclosed cistern. Part tiled walls, shaver point, electric heated towel rail, three ceiling spotlights, extractor fan and LVT flooring.
Viewing Details - Strictly by appointment with the selling agents. For out of office hours please call Alistair Smith, Director at Richard Watkinson and Partners on 07817-283-521.
Tenure Details - The property is leasehold with vacant possession upon completion. 999 year lease. Service charge for maintenance and upkeep to the internal and external communal areas are paid to the managing agent: Block Property Solutions of approximately £1,545 per annum plus an additional estate charge of approximately £191 per annum. Peppercorn ground rent.
Services Details - All mains services are connected.
Mortgage Advice - Mortgage advice is available through our independent mortgage advisor. Please contact the selling agent for further information. Your home is at risk if you do not keep up with repayments on a mortgage or other loan secured on it.
Fixtures & Fittings - Any fixtures and fittings not mentioned in these details are excluded from the sale price. No services or appliances which may have been included in these details have been tested and therefore cannot be guaranteed to be in good working order.
Brochures
Sandringham Manor, Apartment 14, The Grange, Mansf- COUNCIL TAXA payment made to your local authority in order to pay for local services like schools, libraries, and refuse collection. The amount you pay depends on the value of the property.Read more about council Tax in our glossary page.
- Ask agent
- PARKINGDetails of how and where vehicles can be parked, and any associated costs.Read more about parking in our glossary page.
- Yes
- GARDENA property has access to an outdoor space, which could be private or shared.
- Ask agent
- ACCESSIBILITYHow a property has been adapted to meet the needs of vulnerable or disabled individuals.Read more about accessibility in our glossary page.
- Ask agent
Energy performance certificate - ask agent
Sandringham Manor, Apartment 14, The Grange, Mansfield
Add an important place to see how long it'd take to get there from our property listings.
__mins driving to your place
Get an instant, personalised result:
- Show sellers you’re serious
- Secure viewings faster with agents
- No impact on your credit score



Your mortgage
Notes
Staying secure when looking for property
Ensure you're up to date with our latest advice on how to avoid fraud or scams when looking for property online.
Visit our security centre to find out moreDisclaimer - Property reference 34387701. The information displayed about this property comprises a property advertisement. Rightmove.co.uk makes no warranty as to the accuracy or completeness of the advertisement or any linked or associated information, and Rightmove has no control over the content. This property advertisement does not constitute property particulars. The information is provided and maintained by Richard Watkinson & Partners, Mansfield. Please contact the selling agent or developer directly to obtain any information which may be available under the terms of The Energy Performance of Buildings (Certificates and Inspections) (England and Wales) Regulations 2007 or the Home Report if in relation to a residential property in Scotland.
*This is the average speed from the provider with the fastest broadband package available at this postcode. The average speed displayed is based on the download speeds of at least 50% of customers at peak time (8pm to 10pm). Fibre/cable services at the postcode are subject to availability and may differ between properties within a postcode. Speeds can be affected by a range of technical and environmental factors. The speed at the property may be lower than that listed above. You can check the estimated speed and confirm availability to a property prior to purchasing on the broadband provider's website. Providers may increase charges. The information is provided and maintained by Decision Technologies Limited. **This is indicative only and based on a 2-person household with multiple devices and simultaneous usage. Broadband performance is affected by multiple factors including number of occupants and devices, simultaneous usage, router range etc. For more information speak to your broadband provider.
Map data ©OpenStreetMap contributors.



