Skip to content

Apulia, Lecce, Casarano, Italy

£156,276
€180,000
Coldwell Banker Gruppo Bodini, Italia
PROPERTY TYPE

Villa

BATHROOMS

2

SIZE

8,073 sq ft

750 sq m

Key features

  • 6 Rooms
  • Veranda

Description

CASARANO - LECCE - SALENTO
Nestled in the quiet countryside, just a few kilometers from the entrance to the municipality of Casarano, we offer for sale a spacious two-story rustic house.
The property is surrounded by approximately 5.700 sqm of fully fenced land, dotted with olive and palm trees. It enjoys convenient direct access from a coplanar road, ensuring privacy and easy access.
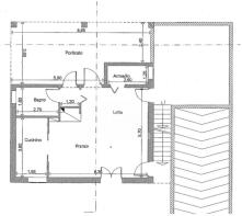
The villa is spread over two levels, connected by a spacious internal staircase. The ground floor, measuring approximately 94 sqm, features a large and bright living area consisting of a kitchen with a practical kitchenette, a spacious living area, and a bathroom.
There is also, behind the living area, an additional room in a rustic state and not yet plastered, offering the possibility of creating two bedrooms and a second bathroom, thus expanding the living space according to your needs.
The basement, measuring approximately 170 sqm, houses a large garage, a particularly spacious basement, and three storage rooms, versatile and functional spaces suited to a variety of needs.
The property is in an advanced state of repair: the floors have already been laid and all the main installations have been completed. A cistern and Imhoff tank are also present.
This property represents an ideal opportunity for those who wish to live in the tranquility of the countryside, yet still be close to amenities, with plenty of space, privacy, and the ability to customize the interiors to suit their taste.
Casarano is also strategically located: just 15 km from the splendid beaches and crystal-clear sea of the Ionian Sea, 45 km from Lecce, 40 km from Otranto on the Adriatic coast, 85 km from Brindisi Airport, and 200 km from Bari International Airport.

Apulia, Lecce, Casarano, Italy

Approximate location

NEAREST AIRPORTS

Distances are straight line measurements
  • Brindisi - Salento(International)
    44.6 miles

Advice on buying Italian property

Learn everything you need to know to successfully find and buy a property in Italy.

About Coldwell Banker Gruppo Bodini, Italia

Coldwell Banker Gruppo Bodini is a prominent real estate firm based in Italy, with 16 branches operating under the International Coldwell Banker brand.

Specializing in luxury properties, Coldwell Banker Gruppo Bodini serves clients with high-end real estate needs, including historic palaces, luxury villas, and exclusive apartments.

We are highly regarded for our tailored services, offering professional and discreet assistance to buyers and sellers alike, ensuring every transaction is handled with expertise and confidentiality. With a strong focus on both investments and personal properties, we cater to a diverse clientele, meeting various real estate needs with attention to detail and customer satisfaction.

Our offices are in key cities such as Rome, Milan, Turin and in Apulia such as Bari, Andria, Barletta, Ostuni, Brindisi, Cisternino, Maglie, Gallipoli, Galatina, Lecce and Taranto, allowing us to cover North, Central and South Italy.

We are known for our international reach, leveraging the Coldwell Banker Global Luxury network to connect clients with luxury properties worldwide and by offering Multi-lingual assistance.

We act with honorableness and are here to help you achieve the very best price for your home. We are passionate about property. Our foundations are built on supporting clients in one of the most significant decisions they'll make in their lifetime. If you are selling, buying or letting a home, or you need some advice and insight on the current national or international property market from our team, please get in touch.

We'd love to hear from you.

Notes

These notes are private, only you can see them.

This is a property advertisement provided and maintained by Coldwell Banker Gruppo Bodini, Italia (reference 280856_186232101001743) and does not constitute property particulars. Whilst we require advertisers to act with best practice and provide accurate information, we can only publish advertisements in good faith and have not verified any claims or statements or inspected any of the properties, locations or opportunities promoted. Rightmove does not own or control and is not responsible for the properties, opportunities, website content, products or services provided or promoted by third parties and makes no warranties or representations as to the accuracy, completeness, legality, performance or suitability of any of the foregoing. We therefore accept no liability arising from any reliance made by any reader or person to whom this information is made available to. You must perform your own research and seek independent professional advice before making any decision to purchase or invest in overseas property.

Email agent

Email agent