
Norman Street, Leicester

- PROPERTY TYPE
Terraced
- BEDROOMS
2
- BATHROOMS
1
- SIZE
Ask agent
- TENUREDescribes how you own a property. There are different types of tenure - freehold, leasehold, and commonhold.Read more about tenure in our glossary page.
Freehold
Key features
- Bay Fronted Terraced House
- Two Double Bedrooms
- Entrance Hallway
- Two Reception Rooms
- Extended Kitchen
- Downstairs W/C
- Bathroom
- Freehold
- EPC Rating E Council Tax Band A
- No Upper Chain
Description
The property benefits from a separate entrance hall, TWO RECEPTION rooms, EXTENDED KITCHEN, and a downstairs W/C. to the ground floor.
The first floor comprises two bedrooms and a bathroom.
A courtyard garden to the rear.
The house is offered for sale CHAIN FREE and would make an IDEAL INVESTMENT or FAMILY HOME.
EARLY VIEWING HIGHLY RECOMMENDED CALL BARKERS .
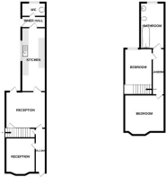
Hallway - Front door, radiator, coving, tiled flooring, built in under stairs cupboard housing fuse box, meter, and storage.
Reception One - 4.31 to bay x 2.96 (14'1" to bay x 9'8") - Radiator, coving, picture rail, double glazed bay window to front aspect.
Reception Two - 3.89 x 3.63 (12'9" x 11'10") - Electric fireplace, picture rail, coving, radiator, double glazed door to rear aspect, door into,
Kitchen - 4.12 x 2.31 (13'6" x 7'6") - Fitted units with worktops, sink with drainer, boiler, plumbing for washing machine, space for fridge freezer, radiator, double glazed window to side aspect, door into,
Inner Hallway - 2.23 x 1.08 (7'3" x 3'6") - Door to side aspect.
Downstairs W/C - Low level W/C, double glazed frosted window to rear aspect.
Landing - Access to loft, radiator.
Bedroom One - 4.43 to bay x 3.90 (14'6" to bay x 12'9") - Fireplace, floorboards, radiator, double glazed bay window to front aspect.
Bedroom Two - 3.66 x 2.98 (12'0" x 9'9") - Fireplace, radiator, floor boards, double glazed window to rear aspect.
Bathroom - 4.11 x 2.31 (13'5" x 7'6") - Bath with electric shower, low level W/C, pedestal wash hand basin, part tiled walls, radiator, frosted double glazed window to rear aspect.
Outside - Courtyard garden with low brick wall, gate to rear access.
To the front of the property is a low level brick wall.
Free Valuation - Thinking of selling? We would be delighted to provide you with a free market appraisal/valuation of your own property. Please contact Barkers to arrange a mutually convenient appointment on Tel:
General Remarks - We are unable to confirm whether certain items in the property are in fully working order (i.e. gas, electric, plumbing etc.) The property is offered for sale on this basis. Prospective purchasers are advised to inspect the property and commission expert reports where appropriate. Barkers Estate Agents have a policy of seeking to obtain any copy guarantees / invoices relating to works that may have been carried out by a previous or existing owner. Please ask one of our staff members to check files for any relevant documentation that have come to our attention.
Photographs are reproduced for general information and it must not be inferred that any items shown are included in the sale with the property.
MORTGAGES
Barkers Estate Agents offer the services of an independent mortgage and financial adviser. Please ask an advisor for further information.
VIEWING TIMES
Viewing strictly by appointment through Barkers Estate Agents.
Hours of Business:
Monday to Friday 9am -5pm
Saturday 9am - 4pm
Aml Disclaimer - In accordance with current Anti-Money Laundering and Proceeds of Crime Legislation, all buyers are required to complete identity and verification checks.
These checks are carried out on our behalf of Moverly, our approved AML provider.
A £50 fee (incl. vat) covers required data and any manual checks.
This must be paid before we can issue a memorandum of sale.
The fee is non-refundable and paid directly to Moverly. We receive a portion of this fee for facilitating the checks
Brochures
Norman Street, LeicesterBrochure- COUNCIL TAXA payment made to your local authority in order to pay for local services like schools, libraries, and refuse collection. The amount you pay depends on the value of the property.Read more about council Tax in our glossary page.
- Band: A
- PARKINGDetails of how and where vehicles can be parked, and any associated costs.Read more about parking in our glossary page.
- Permit,No disabled parking
- GARDENA property has access to an outdoor space, which could be private or shared.
- Yes
- ACCESSIBILITYHow a property has been adapted to meet the needs of vulnerable or disabled individuals.Read more about accessibility in our glossary page.
- Ask agent
Norman Street, Leicester
Add an important place to see how long it'd take to get there from our property listings.
__mins driving to your place
Get an instant, personalised result:
- Show sellers you’re serious
- Secure viewings faster with agents
- No impact on your credit score
Affordability
Notes
Staying secure when looking for property
Ensure you're up to date with our latest advice on how to avoid fraud or scams when looking for property online.
Visit our security centre to find out moreDisclaimer - Property reference 34389145. The information displayed about this property comprises a property advertisement. Rightmove.co.uk makes no warranty as to the accuracy or completeness of the advertisement or any linked or associated information, and Rightmove has no control over the content. This property advertisement does not constitute property particulars. The information is provided and maintained by Barkers, Leicester. Please contact the selling agent or developer directly to obtain any information which may be available under the terms of The Energy Performance of Buildings (Certificates and Inspections) (England and Wales) Regulations 2007 or the Home Report if in relation to a residential property in Scotland.
*This is the average speed from the provider with the fastest broadband package available at this postcode. The average speed displayed is based on the download speeds of at least 50% of customers at peak time (8pm to 10pm). Fibre/cable services at the postcode are subject to availability and may differ between properties within a postcode. Speeds can be affected by a range of technical and environmental factors. The speed at the property may be lower than that listed above. You can check the estimated speed and confirm availability to a property prior to purchasing on the broadband provider's website. Providers may increase charges. The information is provided and maintained by Decision Technologies Limited. **This is indicative only and based on a 2-person household with multiple devices and simultaneous usage. Broadband performance is affected by multiple factors including number of occupants and devices, simultaneous usage, router range etc. For more information speak to your broadband provider.
Map data ©OpenStreetMap contributors.








