3 bedroom semi-detached house for sale
Chestnut Rise, Chandler's Ford

- PROPERTY TYPE
Semi-Detached
- BEDROOMS
3
- BATHROOMS
1
- SIZE
Ask agent
- TENUREDescribes how you own a property. There are different types of tenure - freehold, leasehold, and commonhold.Read more about tenure in our glossary page.
Freehold
Description
Accommodation -
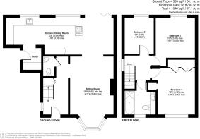
Ground Floor -
Entrance Hall: - Stairs to first floor with under stairs cupboard.
Cloakroom: - White suite comprising wash basin with cupboard under, W.C.
Sitting Room: - 18'6" into bay x 11'4" (5.65m into bay x 3.46m) Large bay window, fireplace.
Kitchen/Dining Room: - 28' x 9'7" (8.54m x 2.93m) Beautiful re-fitted kitchen comprising integrated oven with electric hob, fridge, freezer, water softener, dining area with bi- fold doors into the garden.
Utility Area: - Integrated washing machine and tumble dryer, cupboard housing boiler, side door into rear garden.
First Floor -
Landing: - Access to loft space.
Bedroom 1: - 12'2" x 11'3" (3.72m x 3.42m) Two built in single wardrobes and one double.
Bedroom 2: - 10'5" x 9'11" (3.18m x 3.03m)
Bedroom 3: - 9'8" x 7'5" (2.95m x 2.27)
Bathroom: - Suite comprising white basin with grey cupboard under, bath with shower overhead, W.C, extractor, underfloor heating.
Outside -
Front: - Parking in tandem for 2 cars, area laid to Lawn. EV charging point.
Rear Garden: - Garden has been landscaped in 2020 and has an upper and lower tier. The top tier comprises of a patio area with various shrubs whilst the lower tier comprises of patio and artificial grass. There is a rear and side access.
Garage: - Single garage with electric door and power.
Other Information -
Tenure: - Freehold
Approximate Age: - 1970's
Approximate Area: - 97.1sqm/1046sqft
Sellers Position: - Looking for forward purchase
Heating: - Gas central heating with electric under floor heating in bathroom
Loft Space: - Partially boarded with ladder and light connected
Infant/Junior School: - Nightingale Primary School
Secondary School: - Crestwood Community School
Council Tax: - Band C
Local Council: - Eastleigh Borough Council -
Agents Note: - If you have an offer accepted on a property we will need to, by law, conduct Anti Money Laundering Checks. There is a charge of £60 including vat for these checks regardless of the number of buyers involved.
Brochures
Chestnut Rise, Chandler's FordBrochure- COUNCIL TAXA payment made to your local authority in order to pay for local services like schools, libraries, and refuse collection. The amount you pay depends on the value of the property.Read more about council Tax in our glossary page.
- Band: C
- PARKINGDetails of how and where vehicles can be parked, and any associated costs.Read more about parking in our glossary page.
- Off street
- GARDENA property has access to an outdoor space, which could be private or shared.
- Yes
- ACCESSIBILITYHow a property has been adapted to meet the needs of vulnerable or disabled individuals.Read more about accessibility in our glossary page.
- Ask agent
Chestnut Rise, Chandler's Ford
Add an important place to see how long it'd take to get there from our property listings.
__mins driving to your place
Get an instant, personalised result:
- Show sellers you’re serious
- Secure viewings faster with agents
- No impact on your credit score



Your mortgage
Notes
Staying secure when looking for property
Ensure you're up to date with our latest advice on how to avoid fraud or scams when looking for property online.
Visit our security centre to find out moreDisclaimer - Property reference 33984000. The information displayed about this property comprises a property advertisement. Rightmove.co.uk makes no warranty as to the accuracy or completeness of the advertisement or any linked or associated information, and Rightmove has no control over the content. This property advertisement does not constitute property particulars. The information is provided and maintained by Sparks Ellison, Chandler's Ford. Please contact the selling agent or developer directly to obtain any information which may be available under the terms of The Energy Performance of Buildings (Certificates and Inspections) (England and Wales) Regulations 2007 or the Home Report if in relation to a residential property in Scotland.
*This is the average speed from the provider with the fastest broadband package available at this postcode. The average speed displayed is based on the download speeds of at least 50% of customers at peak time (8pm to 10pm). Fibre/cable services at the postcode are subject to availability and may differ between properties within a postcode. Speeds can be affected by a range of technical and environmental factors. The speed at the property may be lower than that listed above. You can check the estimated speed and confirm availability to a property prior to purchasing on the broadband provider's website. Providers may increase charges. The information is provided and maintained by Decision Technologies Limited. **This is indicative only and based on a 2-person household with multiple devices and simultaneous usage. Broadband performance is affected by multiple factors including number of occupants and devices, simultaneous usage, router range etc. For more information speak to your broadband provider.
Map data ©OpenStreetMap contributors.





