
Hauxton Road, Little Shelford, Cambridge
- PROPERTY TYPE
Plot
- BEDROOMS
5
- BATHROOMS
3
- SIZE
2,293 sq ft
213 sq m
Key features
- Redevelopment of a 3 bedroom detached chalet-style house
- Detailed planning consent granted for a replacement dwelling of around 2,300 sqft
- 5 bedrooms, 3 bathrooms once built
- 0.25 acre plot
- Planning reference: 25/02848/FUL
- Ample parking and double garage
- Designed to achieve an 'A' Energy Rating
- Build to be of timber frame / SIP construction
- Airsource heat pump / mechanical heat recovery to be installed
Description
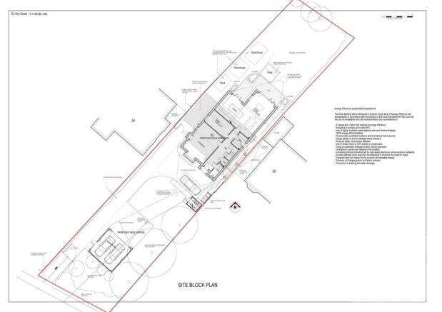
Planning - Detailed planning consent was granted for the “Construction of a self/custom build two storey 5-bed detached dwelling and double garage, following the demolition of the existing Bungalow and Garage” by South Cambridgeshire District Council Ref 25/02848/FUL on 26th November 2025. The planning documents and plans referred to are available from the Greater Cambridge shared planning website ( or on request from our offices.
The property once built will offer generous accommodation of around 2300sqft set across two floors and comprising: entrance hall, open-plan kitchen/dining/family room, separate living room, study, utility room, five bedrooms, two en-suite facilities, family bathroom.
The property will further benefit from being energy efficient and sustainable, having been designed to achieve ‘A’ Energy Rating through the use of renewables and the implementation high-efficient technologies such as timber-frame / SIPs construction, air-source heat pump, mechanical heat recovery etc.
Outside, the property is set back from the road with garden and double garage, along with parking for several cars. There is a generous garden to the rear offering a good degree of privacy and overlooking farm land to the rear, along with a large patio area.
Location - Little Shelford is a delightful picturesque village situated about 5 miles to the south of Cambridge. The village has a range of facilities including, pub/restaurant, village hall and church. The adjoining village of Great Shelford (1 mile) provides a full range of local facilities including health centre, post office, bank, butcher, baker and delicatessen, two supermarkets.
Great Shelford station provides a regular service to Cambridge (10 minutes) and connects to Liverpool Street line to London (from 78 minutes). There is easy access to the City of Cambridge with to the southern side Addenbrooke's Hospital, new Biomedical Campus and many of the University Departments. Cambridge railway station and the M11 motorway are easily accessible. There is schooling in Great Shelford and in Sawston.
Tenure - Freehold
Services - The buyer should satisfy themselves as to services, however it is understood mains services are connected to the current dwelling including: gas, electricity, water and mains drainage.
Statutory Authorities - South Cambridgeshire District Council
Fixtures And Fittings - Unless specifically mentioned in these particulars all fixtures and fittings are expressly excluded from the sale of the freehold interest.
Viewing - Strictly by appointment through the vendor’s sole agents, Redmayne Arnold and Harris
Brochures
Brochure1.pdfProperty InformationBrochureEnergy Performance Certificates
EE RatingHauxton Road, Little Shelford, Cambridge
NEAREST STATIONS
Distances are straight line measurements from the centre of the postcode- Shelford Station1.1 miles
- Foxton Station3.1 miles
- Whittlesford Station3.5 miles
Notes
Disclaimer - Property reference 34389275. The information displayed about this property comprises a property advertisement. Rightmove.co.uk makes no warranty as to the accuracy or completeness of the advertisement or any linked or associated information, and Rightmove has no control over the content. This property advertisement does not constitute property particulars. The information is provided and maintained by Redmayne Arnold & Harris, Great Shelford. Please contact the selling agent or developer directly to obtain any information which may be available under the terms of The Energy Performance of Buildings (Certificates and Inspections) (England and Wales) Regulations 2007 or the Home Report if in relation to a residential property in Scotland.
Map data ©OpenStreetMap contributors.







