
2 bedroom apartment for sale
Hoggan Park, Brecon, Powys

- PROPERTY TYPE
Apartment
- BEDROOMS
2
- BATHROOMS
1
- SIZE
Ask agent
Description
A great starter home or investment property.
Description
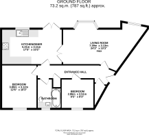
Recently built, Apartment 4 offers a lovely spacious, two bedroom ground floor apartment within the new development of Hoggan Park. Its accommodation comprises of an entrance hall with two storage cupboards, a spacious living room, a modern kitchen/diner with patio doors, two bedrooms, bathroom and two allocated parking spaces. Finished to a modern standard throughout the property is ready to move straight in to, with the benefit of uPVC double glazing, gas central heating and is still under a 10 year LABC guarantee. The lease length is 999 years (from and including 23 July 2020).
Location
Hoggan Park is a new residential development situated within easy access of the town centre. Brecon is a popular market town in the foothills of the Brecon Beacons mountain range, it is surrounded by beautiful scenery and well known for its many attractions including the Monmouthshire - Brecon canal, the many beautiful walks and the outdoor activities available in the National Park. It offers a wide range of shops and amenities which include a cinema, theatre, leisure centre, library and golf course. With good access links, Cardiff, Swansea and Hereford are all an hour’s drive and the nearest train station is in Abergavenny which is 20 miles away.
Walk Inside
Approached via a communal entrance, No. 4 is conveniently situated on the ground floor. The front entrance door opens into the hallway having 2 storage cupboards and provides access to all the principal rooms. To the right is the spacious living room complete with lovely bay window to the front and attractive flooring which extends via a set of double doors into the kitchen/diner. Fitted with a modern range of units to include cupboard and drawer space, inset sink, plumbing for washing machine, integrated oven and hob with extractor over and patio doors opening to the front. The property comprises of 2 bedrooms, both having a window to the rear, and an attractive bathroom suite to include bath with shower over, vanity sink and w.c. unit and towel radiator.
Tenure
The property is of leasehold tenure having a lease term of 999 years (from and including 23 July 2020). There is a modest ground rent of £1 and a service charge of £693.80 pa.
Disclaimer
The photos taken are representatiive of the furnished property but is now unfurnished.
Brochures
Particulars- COUNCIL TAXA payment made to your local authority in order to pay for local services like schools, libraries, and refuse collection. The amount you pay depends on the value of the property.Read more about council Tax in our glossary page.
- Band: C
- PARKINGDetails of how and where vehicles can be parked, and any associated costs.Read more about parking in our glossary page.
- Yes
- GARDENA property has access to an outdoor space, which could be private or shared.
- Ask agent
- ACCESSIBILITYHow a property has been adapted to meet the needs of vulnerable or disabled individuals.Read more about accessibility in our glossary page.
- Ask agent
Hoggan Park, Brecon, Powys
Add an important place to see how long it'd take to get there from our property listings.
__mins driving to your place
Get an instant, personalised result:
- Show sellers you’re serious
- Secure viewings faster with agents
- No impact on your credit score
Your mortgage
Notes
Staying secure when looking for property
Ensure you're up to date with our latest advice on how to avoid fraud or scams when looking for property online.
Visit our security centre to find out moreDisclaimer - Property reference BRE230169. The information displayed about this property comprises a property advertisement. Rightmove.co.uk makes no warranty as to the accuracy or completeness of the advertisement or any linked or associated information, and Rightmove has no control over the content. This property advertisement does not constitute property particulars. The information is provided and maintained by McCartneys LLP, Brecon. Please contact the selling agent or developer directly to obtain any information which may be available under the terms of The Energy Performance of Buildings (Certificates and Inspections) (England and Wales) Regulations 2007 or the Home Report if in relation to a residential property in Scotland.
*This is the average speed from the provider with the fastest broadband package available at this postcode. The average speed displayed is based on the download speeds of at least 50% of customers at peak time (8pm to 10pm). Fibre/cable services at the postcode are subject to availability and may differ between properties within a postcode. Speeds can be affected by a range of technical and environmental factors. The speed at the property may be lower than that listed above. You can check the estimated speed and confirm availability to a property prior to purchasing on the broadband provider's website. Providers may increase charges. The information is provided and maintained by Decision Technologies Limited. **This is indicative only and based on a 2-person household with multiple devices and simultaneous usage. Broadband performance is affected by multiple factors including number of occupants and devices, simultaneous usage, router range etc. For more information speak to your broadband provider.
Map data ©OpenStreetMap contributors.






