St Aidans Avenue, Framwellgate Moor, Durham, DH1

- PROPERTY TYPE
Semi-Detached
- BEDROOMS
3
- BATHROOMS
1
- SIZE
Ask agent
- TENUREDescribes how you own a property. There are different types of tenure - freehold, leasehold, and commonhold.Read more about tenure in our glossary page.
Freehold
Key features
- Three Bedroom
- Semi Detached House
- No Upper Chain
- Large South Facing Rear Garden
- EPC Rating C
- Detached Garage and Driveway
- Conservatory
- Downstairs WC
- Close to Local Amenities
- Viewings Highly Recommended
Description
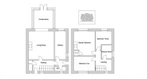
This three bedroom semi detached house is located on St Aidans Avenue in Framwellgate Moor, Durham. The property is being sold with no upper chain and is well presented throughout. The property comprises: an entrance hallway, spacious living room, modern fitted kitchen, conservatory and a downstairs WC. To the first floor there are three bedrooms and a shower room. Externally there is a block paved driveway leading to a detached garage. To the rear is a large South facing garden with lawn, raised planters, a covered seating area and a greenhouse. Viewings are highly recommended.
Front External
To the front of the property is a paved garden and a block paved driveway leading to a detached garage.
Entrance Hall
With laminate flooring, a built in cupboard, a radiator and a double glazed window to the front.
Living Room
4.397m x 3.969m
Spacious living room including an electric fire, laminate flooring, a radiator and a patio door leading to the conservatory.
Kitchen
4.397m x 1.895m
Modern kitchen including fitted wall and base units with a solid wood work surface, sink/drainer with a mixer tap, gas cooker point, extractor fan, plumbing for a washing machine, tiled splash back, laminate flooring, a radiator, double glazed windows to the side and rear.
Downstairs WC
With a low level WC, wash hand basin, vinyl flooring, a radiator, partially tiled walls and a double glazed window to the front.
Conservatory
3.1m x 2.955m
Including laminate flooring, a radiator, double glazed windows to the side and rear. French doors lead to the rear garden.
Stairs
With carpet flooring.
Landing
Including loft access, carpet flooring, a radiator and a double glazed window to the front.
Master Bedroom
3.866m x 3.325m
Master bedroom including a built in cupboard housing the combi boiler, carpet flooring, a radiator and a double glazed window to the rear.
Bedroom Two
3.325m x 2.383m
Bedroom with carpet flooring, a radiator and a double glazed window to the front.
Bedroom Three
2.6m x 2.18m
Bedroom including carpet flooring, a radiator and a double glazed window to the rear.
Shower Room
2.079m x 1.69m
Including a shower cubicle with a mains shower, low level WC, pedestal wash hand basin, vinyl flooring, towel heater and a double glazed window to the side.
Garage
5.795m x 3.509m
Detached garage with power and light.
Rear Garden
Large South facing rear garden including lawn, raised planters and a greenhouse. There is a covered seating area and gated side access to the front.
Agent Notes
1. The property is in council tax band A. 2. Utilities - Mains water, sewerage, electricity and gas. 3. Ultrafast broadband available to this property (checker.ofcom.org.uk) 4. Flood Risk - Rivers and Sea - very low, Surface Water - very low (gov.uk) 5. There is an ongoing probate application.
Disclaimer
The preceding details have been sourced from the seller and the websites listed above. Verification and clarification of this information, along with any further details concerning Material Information parts A, B & C, should be sought from a legal representative or appropriate authorities. Newfield Estates cannot accept liability for any information provided.
- COUNCIL TAXA payment made to your local authority in order to pay for local services like schools, libraries, and refuse collection. The amount you pay depends on the value of the property.Read more about council Tax in our glossary page.
- Ask agent
- PARKINGDetails of how and where vehicles can be parked, and any associated costs.Read more about parking in our glossary page.
- Yes
- GARDENA property has access to an outdoor space, which could be private or shared.
- Yes
- ACCESSIBILITYHow a property has been adapted to meet the needs of vulnerable or disabled individuals.Read more about accessibility in our glossary page.
- Ask agent
St Aidans Avenue, Framwellgate Moor, Durham, DH1
Add an important place to see how long it'd take to get there from our property listings.
__mins driving to your place
Get an instant, personalised result:
- Show sellers you’re serious
- Secure viewings faster with agents
- No impact on your credit score
Affordability
Notes
Staying secure when looking for property
Ensure you're up to date with our latest advice on how to avoid fraud or scams when looking for property online.
Visit our security centre to find out moreDisclaimer - Property reference NES250155. The information displayed about this property comprises a property advertisement. Rightmove.co.uk makes no warranty as to the accuracy or completeness of the advertisement or any linked or associated information, and Rightmove has no control over the content. This property advertisement does not constitute property particulars. The information is provided and maintained by Newfield Estates, Durham. Please contact the selling agent or developer directly to obtain any information which may be available under the terms of The Energy Performance of Buildings (Certificates and Inspections) (England and Wales) Regulations 2007 or the Home Report if in relation to a residential property in Scotland.
*This is the average speed from the provider with the fastest broadband package available at this postcode. The average speed displayed is based on the download speeds of at least 50% of customers at peak time (8pm to 10pm). Fibre/cable services at the postcode are subject to availability and may differ between properties within a postcode. Speeds can be affected by a range of technical and environmental factors. The speed at the property may be lower than that listed above. You can check the estimated speed and confirm availability to a property prior to purchasing on the broadband provider's website. Providers may increase charges. The information is provided and maintained by Decision Technologies Limited. **This is indicative only and based on a 2-person household with multiple devices and simultaneous usage. Broadband performance is affected by multiple factors including number of occupants and devices, simultaneous usage, router range etc. For more information speak to your broadband provider.
Map data ©OpenStreetMap contributors.




