
2 bedroom terraced house for sale
Anchor Close, Shoreham by Sea

- PROPERTY TYPE
Terraced
- BEDROOMS
2
- BATHROOMS
2
- SIZE
714 sq ft
66 sq m
- TENUREDescribes how you own a property. There are different types of tenure - freehold, leasehold, and commonhold.Read more about tenure in our glossary page.
Freehold
Key features
- Modern Open Plan Spacious Kitchen
- Impressive Open Plan Conservatory
- West Facing Rear Garden
- Spacious Lounge
- Off Road Parking
- Ensuite Shower Room To Master Bedroom
- River And Foreshore Within A Short Walk
- Popular Residential Location
Description
We are delighted to offer for sale this modern two bedroom mid terrace house situated withing this popular location
EXPOSED PORCH Front door thorough to:-
ENTRANCE HALL Comprising laminate flooring, radiator with attractive wood surround, opening to:-
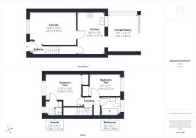
SPACIOUS LOUNGE East aspect. Comprising leaded light pvcu double glazed window, radiator, laminate flooring, two radiators, two wall mounted lights, opening to :-
MODERN OPEN PLAN SPACIOUS KITCHEN Comprising laminate work surfaces with cupboards below with matching eye level cupboards, inset four ring electric hob with extractor fan over, inset single drainer sink unit with mixer tap, integrated appliances include cooler, washing machine, dishwasher and twin oven. Wall mounted contemporary ladder style radiator, understairs storage cupboard housing electric meter.
MODERN CONSERVATORY Comprising pvcu double glazed windows, pvcu double glazed bifolding door leading out onto rear garden, laminate flooring, wall mounted light.
FIRST FLOOR LANDING Comprising loft hatch access with pull down ladder, being boarded and having power and lighting. Airing cupboard with slatted shelving.
BEDROOM ONE East aspect. Comprising leaded light pvcu double glazed window, radiator, built in wardrobe with hanging rail and shelving, sunken spotlights, door to:-
ENSUITE SHOWER ROOM East aspect. Comprising obscure glass leaded light pvcu double glazed window, radiator, low flush wc, pedestal hand wash basin, sunken spotlight, extractor fan, shower cubicle having an integrated shower, lvt flooring.
BEDROOM TWO West aspect. Comprising pvcu double glazed window, radiator, built in wardrobe with hanging rail and shelving.
BATHROOM West aspect. Comprising obscure glass pvcu double glazed window, low flush wc, pedestal hand wash basin, panel enclosed bath with integrated shower over, part tiled walls, lvt flooring, radiator.
FRONT GARDEN Tarmacked area affording off street parking for one vehicle, large block paved area.
WEST FACING REAR GARDEN Large block paved area leading onto artificial grass, outside tap, gate to rear access.
Brochures
Brochure 1- COUNCIL TAXA payment made to your local authority in order to pay for local services like schools, libraries, and refuse collection. The amount you pay depends on the value of the property.Read more about council Tax in our glossary page.
- Band: C
- PARKINGDetails of how and where vehicles can be parked, and any associated costs.Read more about parking in our glossary page.
- Off street
- GARDENA property has access to an outdoor space, which could be private or shared.
- Yes
- ACCESSIBILITYHow a property has been adapted to meet the needs of vulnerable or disabled individuals.Read more about accessibility in our glossary page.
- Ask agent
Energy performance certificate - ask agent
Anchor Close, Shoreham by Sea
Add an important place to see how long it'd take to get there from our property listings.
__mins driving to your place
Get an instant, personalised result:
- Show sellers you’re serious
- Secure viewings faster with agents
- No impact on your credit score



Your mortgage
Notes
Staying secure when looking for property
Ensure you're up to date with our latest advice on how to avoid fraud or scams when looking for property online.
Visit our security centre to find out moreDisclaimer - Property reference S1566371. The information displayed about this property comprises a property advertisement. Rightmove.co.uk makes no warranty as to the accuracy or completeness of the advertisement or any linked or associated information, and Rightmove has no control over the content. This property advertisement does not constitute property particulars. The information is provided and maintained by Jacobs Steel, Shoreham-By-Sea. Please contact the selling agent or developer directly to obtain any information which may be available under the terms of The Energy Performance of Buildings (Certificates and Inspections) (England and Wales) Regulations 2007 or the Home Report if in relation to a residential property in Scotland.
*This is the average speed from the provider with the fastest broadband package available at this postcode. The average speed displayed is based on the download speeds of at least 50% of customers at peak time (8pm to 10pm). Fibre/cable services at the postcode are subject to availability and may differ between properties within a postcode. Speeds can be affected by a range of technical and environmental factors. The speed at the property may be lower than that listed above. You can check the estimated speed and confirm availability to a property prior to purchasing on the broadband provider's website. Providers may increase charges. The information is provided and maintained by Decision Technologies Limited. **This is indicative only and based on a 2-person household with multiple devices and simultaneous usage. Broadband performance is affected by multiple factors including number of occupants and devices, simultaneous usage, router range etc. For more information speak to your broadband provider.
Map data ©OpenStreetMap contributors.






