1 bedroom house share for rent
Windsor Court, Windsor Street, Brighton

Letting details
- Let available date:
- Now
- Deposit:
- £1,557A deposit provides security for a landlord against damage, or unpaid rent by a tenant.Read more about deposit in our glossary page.
- Min. Tenancy:
- Ask agent How long the landlord offers to let the property for.Read more about tenancy length in our glossary page.
- Furnish type:
- Furnished
- Council Tax:
- Ask agent
- PROPERTY TYPE
House Share
- BEDROOMS
1
- BATHROOMS
1
- SIZE
30 sq ft
3 sq m
Key features
- Available NOW!
- QUOTE REFERENCE - WC4432
- Top Floor Flat
- Lift in Building
- One Double Bedroom Flat
- Short Walk To Brighton Mainline Station
- Available Long/Short Term
- Recently Refurbished
- Option To Be Furnished
- Central Brighton
Description
Welcome to this charming room available for rent in the heart of Brighton, located on Windsor Court, Windsor Street. This property offers a delightful living space, perfect for individuals or students seeking a central location with easy access to the vibrant city life.
The room is well-sized at 30 square feet, providing a comfortable area to relax and unwind. It features one reception room, ideal for entertaining guests or enjoying quiet evenings. The property includes one bedroom and a bathroom, ensuring all essential amenities are readily available.
One of the standout features of this property is the integrated appliances, which add convenience to your daily routine.
This property is available for immediate occupancy, making it an excellent choice for anyone looking to move in without delay. The landlord is open to considering pets, which is a fantastic opportunity for pet owners. Furthermore, students and companies are warmly welcomed, making this room a versatile option for various lifestyles.
In summary, this room in Windsor Court offers a unique blend of comfort, convenience, and accessibility in one of Brighton's most sought-after areas. Don't miss the chance to make this delightful space your new home.
*Disclaimer* Furniture available by request. Additional monthly rental costs may apply.
*Disclaimer* In accordance with the Estate Agency Act 1979 we advise that the landlord of this property has a connection with Stanfords Estates, for more information please contact our agency.
Description - ** VIDEO link Available **
** Available NOW ** Stanford's Estates are pleased to offer this recently refurbished one double bedroom flat in the central Brighton offering an open plan lounge kitchen area with integrated appliances, shower room and good size double bedroom with built in storage.
This flat comes fully furnished.
Students welcome.
Video Link - YouTube Link:
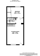
Kitchen / Lounge - 3.96m x 3.78m - Spacious open plan living space with wood effect laminate flooring TV aerial point, laminate flooring, LED downlighters, radiator, window.
Modern contemporary fitted Kitchen area comprising integrated fridge/freezer, washer/dryer, inset stainless steel sink with mixer tap and drainer, four ring electric hob with matching stainless steel underneath and Siemens canopied extractor fan above. High gloss work surface and low/high level storage units.
Bedroom - 3.02m x 2.72m - Double bedroom with carpet flooring, ceiling downlighters, TV aerial point, radiator, window.
Shower Room - White shower suite comprising corner shower, W.C push flush, hand wash basin with stainless steel mixer tap, mirrored storage cabinet above, storage below. Marble effect tiled floor and wall, stainless steel heated towel rail, extractor fan, shaver point.
Other - NB. In accordance with the estate agency act 1979 we advise that the owner of this property has a connection with the letting agents.
Brochures
Windsor Court, Windsor Street, BrightonBrochure- COUNCIL TAXA payment made to your local authority in order to pay for local services like schools, libraries, and refuse collection. The amount you pay depends on the value of the property.Read more about council Tax in our glossary page.
- Band: A
- PARKINGDetails of how and where vehicles can be parked, and any associated costs.Read more about parking in our glossary page.
- Ask agent
- GARDENA property has access to an outdoor space, which could be private or shared.
- Ask agent
- ACCESSIBILITYHow a property has been adapted to meet the needs of vulnerable or disabled individuals.Read more about accessibility in our glossary page.
- Ask agent
Windsor Court, Windsor Street, Brighton
Add an important place to see how long it'd take to get there from our property listings.
__mins driving to your place
Notes
Staying secure when looking for property
Ensure you're up to date with our latest advice on how to avoid fraud or scams when looking for property online.
Visit our security centre to find out moreDisclaimer - Property reference 34339774. The information displayed about this property comprises a property advertisement. Rightmove.co.uk makes no warranty as to the accuracy or completeness of the advertisement or any linked or associated information, and Rightmove has no control over the content. This property advertisement does not constitute property particulars. The information is provided and maintained by Stanfords Estates, Brighton. Please contact the selling agent or developer directly to obtain any information which may be available under the terms of The Energy Performance of Buildings (Certificates and Inspections) (England and Wales) Regulations 2007 or the Home Report if in relation to a residential property in Scotland.
*This is the average speed from the provider with the fastest broadband package available at this postcode. The average speed displayed is based on the download speeds of at least 50% of customers at peak time (8pm to 10pm). Fibre/cable services at the postcode are subject to availability and may differ between properties within a postcode. Speeds can be affected by a range of technical and environmental factors. The speed at the property may be lower than that listed above. You can check the estimated speed and confirm availability to a property prior to purchasing on the broadband provider's website. Providers may increase charges. The information is provided and maintained by Decision Technologies Limited. **This is indicative only and based on a 2-person household with multiple devices and simultaneous usage. Broadband performance is affected by multiple factors including number of occupants and devices, simultaneous usage, router range etc. For more information speak to your broadband provider.
Map data ©OpenStreetMap contributors.




