
Coleman Fields, London, N1

- PROPERTY TYPE
Flat
- BEDROOMS
3
- BATHROOMS
3
- SIZE
1,774 sq ft
165 sq m
Key features
- Close to 1800 sq. ft.
- Share of Freehold
- Huge Terrace
- Great Condition
Description
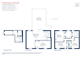
You enter into an unassuming gated porch on the ground floor entrance with the guest shower room and lots of storage.
Upstairs is a fabulous L-shaped reception room with bi-fold doors onto the south-east facing terrace measuring almost 30 ft. The kitchen is also on this floor, semi-open plan, a perfect space for entertaining with family and friends. Natural light floods into this space through the floor to ceiling windows.
On the second floor are three bedrooms, each with en suite bathrooms.
Agents Note: It is our understanding that a lease currently does not exist for the property but will be created upon completion. Your conveyancer will take the necessary steps and advise you as to time-frames.
Situation
Coleman Fields is within the Arlington Conservation area. This location is ideal for Islington and Upper Street with the numerous choices of shops, bars and restaurants and excellent transport facilities at Angel (Northern Line). It also connects well to the City.
Property Ref Number:
HAM-38240- COUNCIL TAXA payment made to your local authority in order to pay for local services like schools, libraries, and refuse collection. The amount you pay depends on the value of the property.Read more about council Tax in our glossary page.
- Band: F
- PARKINGDetails of how and where vehicles can be parked, and any associated costs.Read more about parking in our glossary page.
- Ask agent
- GARDENA property has access to an outdoor space, which could be private or shared.
- Patio,Terrace
- ACCESSIBILITYHow a property has been adapted to meet the needs of vulnerable or disabled individuals.Read more about accessibility in our glossary page.
- Ask agent
Coleman Fields, London, N1
Add an important place to see how long it'd take to get there from our property listings.
__mins driving to your place
Get an instant, personalised result:
- Show sellers you’re serious
- Secure viewings faster with agents
- No impact on your credit score
Your mortgage
Notes
Staying secure when looking for property
Ensure you're up to date with our latest advice on how to avoid fraud or scams when looking for property online.
Visit our security centre to find out moreDisclaimer - Property reference a1n8d000000i6BtAAI. The information displayed about this property comprises a property advertisement. Rightmove.co.uk makes no warranty as to the accuracy or completeness of the advertisement or any linked or associated information, and Rightmove has no control over the content. This property advertisement does not constitute property particulars. The information is provided and maintained by Hamptons, Islington. Please contact the selling agent or developer directly to obtain any information which may be available under the terms of The Energy Performance of Buildings (Certificates and Inspections) (England and Wales) Regulations 2007 or the Home Report if in relation to a residential property in Scotland.
*This is the average speed from the provider with the fastest broadband package available at this postcode. The average speed displayed is based on the download speeds of at least 50% of customers at peak time (8pm to 10pm). Fibre/cable services at the postcode are subject to availability and may differ between properties within a postcode. Speeds can be affected by a range of technical and environmental factors. The speed at the property may be lower than that listed above. You can check the estimated speed and confirm availability to a property prior to purchasing on the broadband provider's website. Providers may increase charges. The information is provided and maintained by Decision Technologies Limited. **This is indicative only and based on a 2-person household with multiple devices and simultaneous usage. Broadband performance is affected by multiple factors including number of occupants and devices, simultaneous usage, router range etc. For more information speak to your broadband provider.
Map data ©OpenStreetMap contributors.








