
Dale Avenue, Longton

- PROPERTY TYPE
Detached Bungalow
- BEDROOMS
4
- BATHROOMS
1
- SIZE
1,946 sq ft
181 sq m
- TENUREDescribes how you own a property. There are different types of tenure - freehold, leasehold, and commonhold.Read more about tenure in our glossary page.
Freehold
Key features
- Spacious Detached Bungalow in a Highly Sought-After Longton Location
- 4 Bedrooms
- 2 Reception Rooms and Conservatory
- Modern Fitted Breakfast Kitchen
- Utility Room
- Ensuite to Bed 1
- 4 Piece Bathroom
- Double Garage and Driveway Parking
- Front and Rear Gardens
- Full Property Details in our Brochure * LINK BELOW
Description
* 4 Bedrooms 2 Bathrooms
* 2 Generous Size Reception Rooms and Conservatory
This exceptionally spacious detached bungalow is located in a desirable area of Longton and offers versatile living accommodation.
The property features an entrance porch leading to a welcoming hallway. To the left, you will find the fourth bedroom, currently used as a reception room, while to the right is the stylish dining kitchen, fitted with high-gloss units, a quartz work surface, and integrated Neff appliances including an oven, grill, hob, dishwasher, fridge, and freezer. The kitchen leads seamlessly to a utility room with space and plumbing for both a washing machine and a tumble dryer.
There is a separate dining room, perfect for family meals or entertaining guests.
To the rear of the house there is a generous living room which opens into a bright conservatory, providing the perfect space for relaxation.
The property also comprises three further bedrooms. The primary bedroom is a substantial size with fitted wardrobes and an ensuite shower room. Both the second and third bedrooms are doubles, and the spacious family bathroom includes a double shower enclosure, bathtub, sink, and WC.
Externally, the property benefits from a large detached double garage with an electric up-and-over door and access to the garden, as well as driveway parking to the front for multiple vehicles. The rear garden features a generous patio and lawn area, mature borders and shrubs, and a timber shed, offering a private and inviting outdoor space.
LOCAL INFORMATION Longton is a sought-after village in the Heart of South Ribble in the PR4 area, Lancashire. Situated about 4 miles west from Preston in Lancashire and offering excellent transport links. A vibrant village centre with an excellent range of boutique independent local shops as well as larger chain stores, such as Booth's supermarket. Excellent local schools and countryside walks being on your doorstep.
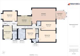
PORCH
HALLWAY
BREAKFAST KITCHEN 9' x 13' 7" (2.74m x 4.14m)
LIVING ROOM 23' 10" x 13' 3" (7.26m x 4.04m)
DINING ROOM 14' x 9' 8" (4.27m x 2.95m)
CONSERVATORY 9' 4" x 8' 8" (2.84m x 2.64m)
UTILITY ROOM 4' 10" x 7' 9" (1.47m x 2.36m)
BEDROOM ONE 16' 5" x 11' 10" (5m x 3.61m)
ENSUITE 2' 7" x 8' 4" (0.79m x 2.54m)
BEDROOM TWO 13' 2" x 9' 7" (4.01m x 2.92m)
BEDROOM THREE 10' 1" x 10' 3" (3.07m x 3.12m)
BEDROOM FOUR 14' 5" x 10' 3" (4.39m x 3.12m)
BATHROOM 7' 9" x 10' 3" (2.36m x 3.12m)
DOUBLE GARAGE 16' 7" x 18' 7" (5.05m x 5.66m)
Whilst we believe the data within these statements to be accurate, any person(s) intending to place an offer and/or purchase the property should satisfy themselves by inspection in person or by a third party as to the validity and accuracy.
Please call to arrange a viewing on this property now. Our office hours are 9am-5pm Monday to Friday and 9am-4pm Saturday.
Brochures
Key Facts For Buy...- COUNCIL TAXA payment made to your local authority in order to pay for local services like schools, libraries, and refuse collection. The amount you pay depends on the value of the property.Read more about council Tax in our glossary page.
- Band: F
- PARKINGDetails of how and where vehicles can be parked, and any associated costs.Read more about parking in our glossary page.
- Garage
- GARDENA property has access to an outdoor space, which could be private or shared.
- Yes
- ACCESSIBILITYHow a property has been adapted to meet the needs of vulnerable or disabled individuals.Read more about accessibility in our glossary page.
- Ask agent
Dale Avenue, Longton
Add an important place to see how long it'd take to get there from our property listings.
__mins driving to your place
Get an instant, personalised result:
- Show sellers you’re serious
- Secure viewings faster with agents
- No impact on your credit score
Affordability
Notes
Staying secure when looking for property
Ensure you're up to date with our latest advice on how to avoid fraud or scams when looking for property online.
Visit our security centre to find out moreDisclaimer - Property reference 101242006288. The information displayed about this property comprises a property advertisement. Rightmove.co.uk makes no warranty as to the accuracy or completeness of the advertisement or any linked or associated information, and Rightmove has no control over the content. This property advertisement does not constitute property particulars. The information is provided and maintained by Roberts & Co Estate Agents, Preston & South Ribble. Please contact the selling agent or developer directly to obtain any information which may be available under the terms of The Energy Performance of Buildings (Certificates and Inspections) (England and Wales) Regulations 2007 or the Home Report if in relation to a residential property in Scotland.
*This is the average speed from the provider with the fastest broadband package available at this postcode. The average speed displayed is based on the download speeds of at least 50% of customers at peak time (8pm to 10pm). Fibre/cable services at the postcode are subject to availability and may differ between properties within a postcode. Speeds can be affected by a range of technical and environmental factors. The speed at the property may be lower than that listed above. You can check the estimated speed and confirm availability to a property prior to purchasing on the broadband provider's website. Providers may increase charges. The information is provided and maintained by Decision Technologies Limited. **This is indicative only and based on a 2-person household with multiple devices and simultaneous usage. Broadband performance is affected by multiple factors including number of occupants and devices, simultaneous usage, router range etc. For more information speak to your broadband provider.
Map data ©OpenStreetMap contributors.






