
Land for sale
Chester Road, Deeside, CH5
- PROPERTY TYPE
Land
- SIZE
87,120 sq ft
8,094 sq m
Key features
- * Unconditional offers invited
- * Prime infill site within a mature residential area
- * Circa just under 2 acres (unconfirmed)
- * Sought-after location in Pentre, Deeside
- * Surrounded by established housing
- * Excellent potential for residential development (STP)
- * Convenient access to local amenities, schools and transport links
- * Strong end-user demand in the area
Description
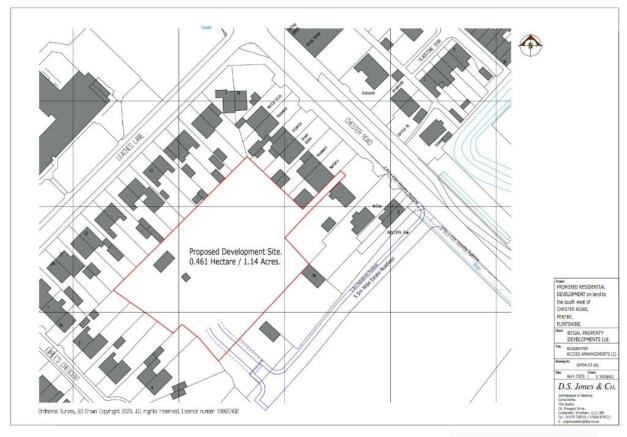
An excellent opportunity to acquire a prime infill development site extending to approximately just under 2 acres (unconfirmed), situated within a mature and well-established residential area of Pentre, Deeside.
The site is surrounded by a mix of traditional and modern housing, supporting strong underlying end-user demand and providing an attractive setting for a future residential scheme. The location benefits from convenient access to local amenities, primary and secondary schooling, and strong transport connections to Deeside Industrial Park, Chester and the wider North Wales and North West regions.
An indicative residential layout has been prepared to demonstrate the site's potential capacity for development. This layout is for illustrative purposes only and has not been submitted for planning approval. Any future development will be subject to obtaining the necessary planning permissions. Interested parties are advised to make their own enquiries with the Local Planning Authority.
The land represents a rare opportunity to secure a sizeable infill parcel within an established residential environment in a consistently popular area.
Further information available upon request.
Chester Road, Deeside, CH5
NEAREST STATIONS
Distances are straight line measurements from the centre of the postcode- Shotton Station1.3 miles
- Hawarden Bridge Station1.3 miles
- Hawarden Station1.4 miles
Notes
Disclaimer - Property reference landpentre. The information displayed about this property comprises a property advertisement. Rightmove.co.uk makes no warranty as to the accuracy or completeness of the advertisement or any linked or associated information, and Rightmove has no control over the content. This property advertisement does not constitute property particulars. The information is provided and maintained by Red Door, North Wales. Please contact the selling agent or developer directly to obtain any information which may be available under the terms of The Energy Performance of Buildings (Certificates and Inspections) (England and Wales) Regulations 2007 or the Home Report if in relation to a residential property in Scotland.
Map data ©OpenStreetMap contributors.





