
London Road South, Lowestoft

- PROPERTY TYPE
End of Terrace
- BEDROOMS
3
- BATHROOMS
2
- SIZE
Ask agent
- TENUREDescribes how you own a property. There are different types of tenure - freehold, leasehold, and commonhold.Read more about tenure in our glossary page.
Freehold
Key features
- 5 Minutes to the Beach
- THREE Separate Bedrooms
- Spacious Period Home
- CHAIN FREE
- PERFECT INVESTMENT
- Bay Fronted Sitting Room
Description
Upon entering, you are welcomed into a bright bay-fronted lounge, providing a cosy yet spacious living area. The property continues through to a separate dining room, ideal for family meals or entertaining, with stairs leading to the first floor. Completing the ground floor is a high quality fitted kitchen, featuring an excellent range of wall and base units, complementary work surfaces and direct access out to the rear garden.
Upstairs, the home offers three separate bedrooms, including a well-proportioned master bedroom to the front, alongside two further bedrooms overlooking the rear aspect. The accommodation is rounded off by a family bathroom fitted with a bath and shower over.
Externally, the property benefits from on-road parking to the front and side, with gated access to the entrance and a low maintenance shingle frontage. To the rear is a fair sized enclosed garden, complete with a patio seating area, perfect for summer evenings, along with side access via a gate.
Positioned on the ever-convenient London Road South, the home is ideally placed within close proximity to local amenities, schools, transport links, and the town centre — making it an excellent lifestyle purchase or investment in one of Lowestoft’s most convenient coastal locations.
Early viewing is highly recommended to appreciate the space, location and potential on offer.
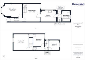
Entrance Hall
Sealed unit double glazed front door leading through into spacious entrance hall, tiled flooring throughout, power points, radiator, door through to sitting room, door through to dining room.
Sitting Room
15'0" x 9'10" (4.57m x 3m)
Sealed unit double glazed bay-fronted window, carpet flooring, power points, TV point, radiator.
Dining Room
13'3" x 12'0" (4.04m x 3.66m)
Sealed unit double glazed window to rear aspect, tiled flooring, power points, radiator, TV point, door through to kitchen, carpeted staircase with wooden banister.
Kitchen
11'0" x 8'9" (3.35m x 2.67m)
Sealed unit double glazed window to side aspect, tiled flooring, power points, radiator, full range of base and wall units set across extended worksurfaces, inset stainless steel sink with mixer tap and drainer unit, slot for fridge/freezer, slot for oven/cooker, door through to 'rear lobby' and family bathroom.
Rear Lobby
Sealed unit double glazed rear door, tiled flooring, boiler cupboard, power points, door to kitchen and bathroom.
First Floor Landing
Carpet flooring, power points, radiator, doors through to bedrooms 1-3 and cloakroom.
Family Bathroom
Sealed unit double glazed frosted window, tiled flooring, bath tub with shower over, wash basin, low level w/c, heated towel rail.
Bedroom 1
13'2" x 12'4" (4.01m x 3.76m)
Sealed unit double glazed window to front aspect, carpet flooring, power points, TV point, radiator, built-in storage/wardrobe storage.
Bedroom 2
10'1" x 8'9" (3.07m x 2.67m)
Sealed unit double glazed window, carpet flooring, power points, radiator, TV point.
Bedroom 3
8'2" x 7'10" (2.49m x 2.39m)
Sealed unit double glazed window to rear aspect, carpet flooring, power points, radiator.
First Floor Cloakroom
Sealed unit double glazed window, wash basin, low level w/c.
Outside
To the front of the property, a low brick wall with metal gate leading to front yard, patio pathway leading to front door, with on-street parking to front and side. To the rear, a good sized, private, fully enclosed courtyard with rear access gate.
Disclaimer
Howards Estate Agents also offer a professional, ARLA accredited Lettings and Management Service. If you are considering renting your property in order to purchase, are looking at buy to let or would like a free review of your current portfolio then please call the Lettings Branch Manager on the number shown above.
Howards Estate Agents is the seller's agent for this property. Your conveyancer is legally responsible for ensuring any purchase agreement fully protects your position. We make detailed enquiries of the seller to ensure the information provided is as accurate as possible. Please inform us if you become aware of any information being inaccurate.
Brochures
Material InformationBrochure- COUNCIL TAXA payment made to your local authority in order to pay for local services like schools, libraries, and refuse collection. The amount you pay depends on the value of the property.Read more about council Tax in our glossary page.
- Ask agent
- PARKINGDetails of how and where vehicles can be parked, and any associated costs.Read more about parking in our glossary page.
- Ask agent
- GARDENA property has access to an outdoor space, which could be private or shared.
- Yes
- ACCESSIBILITYHow a property has been adapted to meet the needs of vulnerable or disabled individuals.Read more about accessibility in our glossary page.
- Ask agent
London Road South, Lowestoft
Add an important place to see how long it'd take to get there from our property listings.
__mins driving to your place
Get an instant, personalised result:
- Show sellers you’re serious
- Secure viewings faster with agents
- No impact on your credit score
Your mortgage
Notes
Staying secure when looking for property
Ensure you're up to date with our latest advice on how to avoid fraud or scams when looking for property online.
Visit our security centre to find out moreDisclaimer - Property reference 0385_HOW038510085. The information displayed about this property comprises a property advertisement. Rightmove.co.uk makes no warranty as to the accuracy or completeness of the advertisement or any linked or associated information, and Rightmove has no control over the content. This property advertisement does not constitute property particulars. The information is provided and maintained by Howards, Lowestoft. Please contact the selling agent or developer directly to obtain any information which may be available under the terms of The Energy Performance of Buildings (Certificates and Inspections) (England and Wales) Regulations 2007 or the Home Report if in relation to a residential property in Scotland.
*This is the average speed from the provider with the fastest broadband package available at this postcode. The average speed displayed is based on the download speeds of at least 50% of customers at peak time (8pm to 10pm). Fibre/cable services at the postcode are subject to availability and may differ between properties within a postcode. Speeds can be affected by a range of technical and environmental factors. The speed at the property may be lower than that listed above. You can check the estimated speed and confirm availability to a property prior to purchasing on the broadband provider's website. Providers may increase charges. The information is provided and maintained by Decision Technologies Limited. **This is indicative only and based on a 2-person household with multiple devices and simultaneous usage. Broadband performance is affected by multiple factors including number of occupants and devices, simultaneous usage, router range etc. For more information speak to your broadband provider.
Map data ©OpenStreetMap contributors.





