Hills Close, Mexborough, S64

- PROPERTY TYPE
Semi-Detached
- BEDROOMS
3
- SIZE
1,366 sq ft
127 sq m
- TENUREDescribes how you own a property. There are different types of tenure - freehold, leasehold, and commonhold.Read more about tenure in our glossary page.
Freehold
Key features
- Exceptional & extensive storage throughout the entire home
- Unique garage with additional large crawl space storage beneath the kitchen (with lighting)
- Three spacious double bedrooms with fitted storage
- Master bedroom with modern en-suite shower room
- Landscaped private tiered rear garden with summer house (with electric) and additional shed
- Off-road parking for three vehicles
- Move-in ready condition with recently installed combi boiler (10-year guarantee)
- Close to local amenities and motorway links
Description
An Exceptional 3 Bedroom Semi-Detached Home with Unbelievable Storage and Stunning Garden
Situated on the ever-popular Hills Close in Mexborough, just minutes from the bustling high street, this fantastic move-in ready three-bedroom semi-detached home offers something truly rare – extraordinary storage space combined with modern, immaculate presentation.
Set across three beautifully presented floors, this unique home is perfect for growing families, professionals, or anyone who values space, organisation and practicality without compromising on style.
A Home That Keeps on Giving – Space & Storage at Every Turn
From the moment you step inside, you are welcomed by a bright entrance hallway complete with a downstairs WC and a generous built-in storage cupboard, just the first glimpse of what this home has to offer.
The rear-facing kitchen diner is both stylish and functional, opening directly onto the garden. It features:
A range of wall and base units
Electric oven and gas hob
Integrated fridge/freezer
Integrated dishwasher
Plumbing for a washing machine
Recently installed combi boiler with a 10-year guarantee
First Floor – Light-Filled Living & Generous Bedrooms
The spacious rear-facing lounge enjoys pleasant garden views and offers the perfect place to relax or entertain.
The third bedroom is a generous double complete with fitted wardrobes, while the well-appointed family bathroom includes a bath with overhead shower.
Second Floor – A Private & Spacious Retreat
The top floor continues to impress with:
A landing featuring another convenient storage cupboard
A stunning master bedroom with garden views, modern fitted wardrobes and a newly fitted en-suite shower room
A further spacious double bedroom with built-in storage
Every bedroom in this home benefits from integrated storage solutions – a rare and highly desirable feature.
The Real Showstopper – Unmatched Garage & Storage Space
This property truly stands apart from others in the area thanks to its incredible garage and additional storage solutions.
Garage with mezzanine level
Extensive additional crawl space beneath the kitchen footprint (with lighting)
Expansive, practical and versatile storage areas rarely found in similar homes
Whether you need workshop space, hobby storage, business use, or simply exceptional organisation, this home delivers beyond expectations.
Beautifully Landscaped Private Garden
The tiered rear garden is a private, landscaped haven featuring:
Patio seating area
Well-maintained lawn
Raised planting area perfect for pots
Summer house with electric – ideal for a home bar, office or relaxation space
Additional storage shed
To the front, the property offers ample off-road parking for three vehicles, alongside access to the garage. An additional storage cupboard is located in the porch.
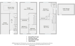
Entrance Hall – 4.7m x 1m
Kitchen/diner – 3.1m x 4.7m
W/C – 1.5m x 0.8m
Lounge – 4.5m x 4.7m
Bedroom 3 – 3.7m x 2.5m
Bathroom – 2.6m x 2.1m
Bedroom 1 – 4.2m x 3.9m
En-suite – 3.2m x 1.3m
Bedroom 2 – 4m x 4.7m
Garage – 5.6m x 2.5m x 3.5m
Crawl Space – 3.1m x 4.7m
Agent Notes
Floorplans: The floorplans within these particulars are for identification purposes only, they are representational and are not to scale. Accuracy and proportions should be checked by prospective purchasers at the property.
Money Laundering Regulations: In accordance with Anti Money Laundering Regulations, buyers will be required to provide proof of identity once an offer has been accepted (subject to contract) prior to solicitors being instructed.
General: Whilst every care has been taken with the preparation of these particulars, they are only a general guide to the property. These Particulars do not constitute a contract or part of a contract.
EPC Rating: C
- COUNCIL TAXA payment made to your local authority in order to pay for local services like schools, libraries, and refuse collection. The amount you pay depends on the value of the property.Read more about council Tax in our glossary page.
- Band: C
- PARKINGDetails of how and where vehicles can be parked, and any associated costs.Read more about parking in our glossary page.
- Yes
- GARDENA property has access to an outdoor space, which could be private or shared.
- Yes
- ACCESSIBILITYHow a property has been adapted to meet the needs of vulnerable or disabled individuals.Read more about accessibility in our glossary page.
- Ask agent
Energy performance certificate - ask agent
Hills Close, Mexborough, S64
Add an important place to see how long it'd take to get there from our property listings.
__mins driving to your place
Get an instant, personalised result:
- Show sellers you’re serious
- Secure viewings faster with agents
- No impact on your credit score
Your mortgage
Notes
Staying secure when looking for property
Ensure you're up to date with our latest advice on how to avoid fraud or scams when looking for property online.
Visit our security centre to find out moreDisclaimer - Property reference 057e1ca1-83a5-4f9d-9ffa-99b6d9a3fbe0. The information displayed about this property comprises a property advertisement. Rightmove.co.uk makes no warranty as to the accuracy or completeness of the advertisement or any linked or associated information, and Rightmove has no control over the content. This property advertisement does not constitute property particulars. The information is provided and maintained by ACR Estate Agents Ltd, Covering Doncaster. Please contact the selling agent or developer directly to obtain any information which may be available under the terms of The Energy Performance of Buildings (Certificates and Inspections) (England and Wales) Regulations 2007 or the Home Report if in relation to a residential property in Scotland.
*This is the average speed from the provider with the fastest broadband package available at this postcode. The average speed displayed is based on the download speeds of at least 50% of customers at peak time (8pm to 10pm). Fibre/cable services at the postcode are subject to availability and may differ between properties within a postcode. Speeds can be affected by a range of technical and environmental factors. The speed at the property may be lower than that listed above. You can check the estimated speed and confirm availability to a property prior to purchasing on the broadband provider's website. Providers may increase charges. The information is provided and maintained by Decision Technologies Limited. **This is indicative only and based on a 2-person household with multiple devices and simultaneous usage. Broadband performance is affected by multiple factors including number of occupants and devices, simultaneous usage, router range etc. For more information speak to your broadband provider.
Map data ©OpenStreetMap contributors.





