Lime Tree Avenue, Goole, DN14

- PROPERTY TYPE
Terraced
- BEDROOMS
3
- BATHROOMS
1
- SIZE
Ask agent
- TENUREDescribes how you own a property. There are different types of tenure - freehold, leasehold, and commonhold.Read more about tenure in our glossary page.
Freehold
Key features
- Quote Ref: 741412 when calling
- Off street parking - Gated driveway 2 cars
- Large long garden with sheds
- Downstairs toilet with scope for development
- Double Glazed throughout
- Snicket access from front garden to back garden
Description
Guide Price Bracket £110k - £120k
------------NO CHAIN------------
****Call now to arrange a viewing****
____________________________________________________________________
Estate Agent summery :
Nestled in a popular residential area, this three-bedroom terraced property on Lime Tree Avenue, Goole presents an excellent opportunity for buyers seeking a spacious family home with scope for improvement and personalisation.
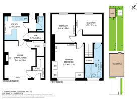
Currently arranged as a well-proportioned three-bedroom mid-terrace property, the home offers generous accommodation throughout, making it ideal for family living. The ground floor features a comfortable lounge, spacious kitchen area, a convenient downstairs toilet, and multiple useful storage rooms which offer excellent potential for redevelopment or reconfiguration to suit modern lifestyles.
One of the standout features of the property is the generous frontage, providing a driveway and front garden with space for up to two vehicles. A useful side passageway provides practical access from the front of the property through to the rear garden.
To the first floor are three well-sized double bedrooms along with a family bathroom, creating a practical and comfortable layout perfectly suited to growing families.
Externally, the property benefits from an enclosed rear garden offering a private outdoor space with plenty of potential for further improvement.
Conveniently located close to local schools, shops, and transport links, this property offers fantastic potential to add value and create a comfortable long-term family home. Early viewing is highly recommended to appreciate the opportunity on offer.
____________________________________________________________________
Area Highlight :
A convenient and family friendly location, this property is situated within easy walking distance of everyday amenities. Local shops, cafés, and takeaways on North Street and Edinburgh Street are just a short 5–7 minute walk away, providing plenty of convenience for daily errands.
For commuters and travellers, Goole railway station is approximately 0.5 km from the property - around a 6-8 minute walk -offering regular services to destinations across the region. A choice of bus stops are also close by, with a local stop on Lime Tree Avenue literally on the doorstep, and additional stops on Edinburgh Street and North Street within a few minutes’ walk, providing good links across Goole and to surrounding towns.
With a welcoming community feel, good access to public transport, and everyday conveniences nearby, Lime Tree Avenue provides a great setting for comfortable family living.
____________________________________________________________________
- Please consult the floor plan for room measurements and details.
____________________________________________________________________
Call or email now to arrange a viewing and the start of your next chapter!
Brochures
Lime Tree Brochure- COUNCIL TAXA payment made to your local authority in order to pay for local services like schools, libraries, and refuse collection. The amount you pay depends on the value of the property.Read more about council Tax in our glossary page.
- Band: A
- PARKINGDetails of how and where vehicles can be parked, and any associated costs.Read more about parking in our glossary page.
- Driveway,Off street
- GARDENA property has access to an outdoor space, which could be private or shared.
- Yes
- ACCESSIBILITYHow a property has been adapted to meet the needs of vulnerable or disabled individuals.Read more about accessibility in our glossary page.
- Ask agent
Lime Tree Avenue, Goole, DN14
Add an important place to see how long it'd take to get there from our property listings.
__mins driving to your place
Get an instant, personalised result:
- Show sellers you’re serious
- Secure viewings faster with agents
- No impact on your credit score
About Keller Williams Plus, Covering Nationwide
Suite 1G, Widford Business Centre, 33 Robjohns Road, Chelmsford, CM1 3AG

Affordability
Notes
Staying secure when looking for property
Ensure you're up to date with our latest advice on how to avoid fraud or scams when looking for property online.
Visit our security centre to find out moreDisclaimer - Property reference RX741412. The information displayed about this property comprises a property advertisement. Rightmove.co.uk makes no warranty as to the accuracy or completeness of the advertisement or any linked or associated information, and Rightmove has no control over the content. This property advertisement does not constitute property particulars. The information is provided and maintained by Keller Williams Plus, Covering Nationwide. Please contact the selling agent or developer directly to obtain any information which may be available under the terms of The Energy Performance of Buildings (Certificates and Inspections) (England and Wales) Regulations 2007 or the Home Report if in relation to a residential property in Scotland.
*This is the average speed from the provider with the fastest broadband package available at this postcode. The average speed displayed is based on the download speeds of at least 50% of customers at peak time (8pm to 10pm). Fibre/cable services at the postcode are subject to availability and may differ between properties within a postcode. Speeds can be affected by a range of technical and environmental factors. The speed at the property may be lower than that listed above. You can check the estimated speed and confirm availability to a property prior to purchasing on the broadband provider's website. Providers may increase charges. The information is provided and maintained by Decision Technologies Limited. **This is indicative only and based on a 2-person household with multiple devices and simultaneous usage. Broadband performance is affected by multiple factors including number of occupants and devices, simultaneous usage, router range etc. For more information speak to your broadband provider.
Map data ©OpenStreetMap contributors.




