Market Place, Boston
- SIZE AVAILABLE
1,000 sq ft
93 sq m
- SECTOR
Commercial property to lease
Lease details
- Lease available date:
- Ask agent
Key features
- TO LET
- S/C First Floor Office Suite
- Approx. 1,000 sq.ft.
- Gas Fired Heating
- Sealed Unit Double Glazing
- Town Centre Location
Description
Having approx. 1,000 sq.ft. (93 sq.m) of net useable space, plus two separate cloakrooms/w.c.s, the premises have the benefit of gas fired radiator central heating and sealed unit double glazing.
Suitable for Offices, Shop, Research and Development, Light Industrial, Planning Use Class E.
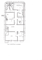
Accommodation - Private ground floor entrance from Market Place leads to staircase giving access up to:-
Reception/Waiting Area - 6.48m x 2.90m (21'3" x 9'6") - Having radiators, carpeting and with doors leading off to:
Private Office No. 1 - 5.00 x 3.58 max (16'4" x 11'8" max) - Having 2 radiators; bulkhead area overstairs; full length windows overlooking the Market Place.
Private Office No.2 - 11'9" x 8' - Having radiator; window overlooking the Market Place.
A further door from the Reception/Waiting Area leads to:-
Inner Hallway - Off which are arranged:-
Private Office No.3 - 9'9" x 8'8" - Having radiator; window overlooking Sibsey Lane.
Staffroom/Kitchen - 16' x 11'6" - Containing sink unit and fitted cupboards.
2 Seperate Offices - 2.51m x 2.79m and 2.92m x 4.37m max (8'2" x 9'1" a - Office space having a radiator and ceiling light.
Store/Office space having double glazed window, radiator and 2 ceiling lights.
2 Separate Cloakrooms - Each having wash basin and low level w.c., and one containing wall mounted Glowworm Easi gas fired boiler.
Tenure - Leasehold.
New negotiable length term lease upon IRI type terms at the initial rental of £6,780 per annum exclusive.
A deposit bond equivalent to 2 months rent is required for the tenant to pay.
Business Rates - We understand from the VAO website that the April 2023 Rateable Value assessment is £7,000. Prospective tenants are advised to contact Boston Borough Council to verify the total amount of business rates payable. (Tel: ).
The current rateable value for small business rate relief is £15,000. The maximum amount of relief that can be awarded is 100% for properties with a rateable value of less than £12,000 and where the ratepayer occupies it as their sole property. Properties with rateable value between £12,000 and £15,000 are entitled to a proportion of relief up to 100%. Properties with rateable valve of between £15,000 and £51,000 will not receive relief but will still benefit from the lower rate multiplier.
For those businesses that take on a additional property which would have meant the loss of small business rate relief, the government confirmed that they are allowed to keep that relief for the periodof 12 months.
If you would like to apply for small business rate relief simply contact Boston Borough Council on or email the business rates team.
Legal Costs - The ingoing tenant to be responsible for the Landlord's reasonable legal costs in the preparation of the lease.
Epc - D Rating (96)
Viewing - By appointment only with the Sole Letting Agents, Bruce Mather Ltd. Tel: .
Energy Performance Certificates
EE RatingEI RatingBrochures
Market Place, Boston
NEAREST STATIONS
Distances are straight line measurements from the centre of the postcode- Boston Station0.3 miles
- Hubberts Bridge Station3.6 miles
Notes
Disclaimer - Property reference 34491937. The information displayed about this property comprises a property advertisement. Rightmove.co.uk makes no warranty as to the accuracy or completeness of the advertisement or any linked or associated information, and Rightmove has no control over the content. This property advertisement does not constitute property particulars. The information is provided and maintained by Bruce Mather Limited, Boston. Please contact the selling agent or developer directly to obtain any information which may be available under the terms of The Energy Performance of Buildings (Certificates and Inspections) (England and Wales) Regulations 2007 or the Home Report if in relation to a residential property in Scotland.
Map data ©OpenStreetMap contributors.





