
Graven Hill, Bicester, Oxfordshire, OX25

- PROPERTY TYPE
Terraced
- BEDROOMS
2
- BATHROOMS
1
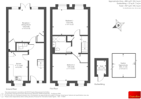
- SIZE
907 sq ft
84 sq m
- TENUREDescribes how you own a property. There are different types of tenure - freehold, leasehold, and commonhold.Read more about tenure in our glossary page.
Ask agent
Key features
- Modern home with two double bedrooms
- Covered by NHBC warranty
- Ground floor W.C.
- Fibre optic broadband and excellent transport links
- Less than half a mile away from primary school
- 70% Shared Ownership Property
- Private Enclosed Rear Garden
- Living Diner and Separate Kitchen
Description
Two double bedroom modern home in desirable location. Energy efficient passive design with mechanical ventilation heat recovery system. Dining room with bi-fold doors to larger-than-average rear garden with lawn and paved patio. Ground floor cloakroom, bathroom, driveway. 70% Share available.
Property Details
Graven Hill Development - The unique development of Graven Hill has walks, play areas, and woods with a new wine shop and esquires coffee shop now open.
A short walk away Bicester has two railway stations. Bicester North offers a great commuter service to London Marylebone in around 45 minutes and you can reach Birmingham in 1 hour. Bicester Village Station has been upgraded to provide a further route to London Marylebone.
The M40 is within easy reach at J9 or J10 and offers access to London, M25, Oxford, and Birmingham.
The A41, A43, and A34 are all within easy reach. Bicester Village is a dream destination for designer shopping with 170 luxury boutiques all on your doorstep and is a few minutes’ drive or a five-minute walk from the town centre.
Located 12 miles from Oxford and 24 miles from Milton Keynes, Bicester is one of the fastest-growing areas in Oxfordshire with excellent transport links by rail and road to the cities of London, Oxford, and Birmingham.
Brochures
More details from Chancellors- COUNCIL TAXA payment made to your local authority in order to pay for local services like schools, libraries, and refuse collection. The amount you pay depends on the value of the property.Read more about council Tax in our glossary page.
- Band: C
- PARKINGDetails of how and where vehicles can be parked, and any associated costs.Read more about parking in our glossary page.
- Off street
- GARDENA property has access to an outdoor space, which could be private or shared.
- Private garden
- ACCESSIBILITYHow a property has been adapted to meet the needs of vulnerable or disabled individuals.Read more about accessibility in our glossary page.
- Ask agent
Graven Hill, Bicester, Oxfordshire, OX25
Add an important place to see how long it'd take to get there from our property listings.
__mins driving to your place
Get an instant, personalised result:
- Show sellers you’re serious
- Secure viewings faster with agents
- No impact on your credit score
Your mortgage
Notes
Staying secure when looking for property
Ensure you're up to date with our latest advice on how to avoid fraud or scams when looking for property online.
Visit our security centre to find out moreDisclaimer - Property reference 6118726. The information displayed about this property comprises a property advertisement. Rightmove.co.uk makes no warranty as to the accuracy or completeness of the advertisement or any linked or associated information, and Rightmove has no control over the content. This property advertisement does not constitute property particulars. The information is provided and maintained by Chancellors, Bicester. Please contact the selling agent or developer directly to obtain any information which may be available under the terms of The Energy Performance of Buildings (Certificates and Inspections) (England and Wales) Regulations 2007 or the Home Report if in relation to a residential property in Scotland.
*This is the average speed from the provider with the fastest broadband package available at this postcode. The average speed displayed is based on the download speeds of at least 50% of customers at peak time (8pm to 10pm). Fibre/cable services at the postcode are subject to availability and may differ between properties within a postcode. Speeds can be affected by a range of technical and environmental factors. The speed at the property may be lower than that listed above. You can check the estimated speed and confirm availability to a property prior to purchasing on the broadband provider's website. Providers may increase charges. The information is provided and maintained by Decision Technologies Limited. **This is indicative only and based on a 2-person household with multiple devices and simultaneous usage. Broadband performance is affected by multiple factors including number of occupants and devices, simultaneous usage, router range etc. For more information speak to your broadband provider.
Map data ©OpenStreetMap contributors.








