
Great North Road, North Mymms, Hatfield, Hertfordshire, AL9

- PROPERTY TYPE
Detached
- BEDROOMS
3
- BATHROOMS
1
- SIZE
1,201-3,194 sq ft
112-297 sq m
- TENUREDescribes how you own a property. There are different types of tenure - freehold, leasehold, and commonhold.Read more about tenure in our glossary page.
Freehold
Key features
- Kennels and stables
- No onward chain
- Scope to extend, subject to planning consents
- Large parking area and double garage
- Over 3000 sq ft of total building space
- EPC Rating = E
Description
Description
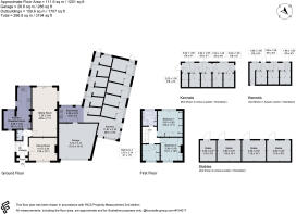
Cravenia is an individual detached house set on a large plot of about 1.79 acres. The house has the unusual benefit of 19 kennels spread over three buildings as well as a stable block. Given the amount of land and additional existing buildings, the property offers great scope to extend and develop further subject to obtaining the necessary planning consents.
The existing house has a hallway with guest cloakroom, an extended sitting room with patio doors to the garden, a dining room and a kitchen breakfast room with door to side..
On the first floor there are three bedrooms with fitted wardrobes and a bathroom. The main bedroom has air conditioning.
The attached double garage has a door to a kitchenette that previously served the attached kennel block. This is approximately 38 feet in length and offers scope for conversion to additional accommodation if required, perhaps as an annexe or games room. At present there are eleven individual kennels.
There are two further kennel buildings with an enclosed patio courtyard.
To the rear of the house there is a private garden area with patio and extensive lawn. To the front there is a large gravelled driveway affording parking for multiple cars. Beyond the garden there is a paddock with stable block.
Square Footage: 1,201 sq ft
Acreage: 1.79 Acres
Brochures
Web DetailsParticulars- COUNCIL TAXA payment made to your local authority in order to pay for local services like schools, libraries, and refuse collection. The amount you pay depends on the value of the property.Read more about council Tax in our glossary page.
- Band: F
- PARKINGDetails of how and where vehicles can be parked, and any associated costs.Read more about parking in our glossary page.
- Driveway
- GARDENA property has access to an outdoor space, which could be private or shared.
- Yes
- ACCESSIBILITYHow a property has been adapted to meet the needs of vulnerable or disabled individuals.Read more about accessibility in our glossary page.
- Ask agent
Great North Road, North Mymms, Hatfield, Hertfordshire, AL9
Add an important place to see how long it'd take to get there from our property listings.
__mins driving to your place
Get an instant, personalised result:
- Show sellers you’re serious
- Secure viewings faster with agents
- No impact on your credit score
Your mortgage
Notes
Staying secure when looking for property
Ensure you're up to date with our latest advice on how to avoid fraud or scams when looking for property online.
Visit our security centre to find out moreDisclaimer - Property reference HRS250222. The information displayed about this property comprises a property advertisement. Rightmove.co.uk makes no warranty as to the accuracy or completeness of the advertisement or any linked or associated information, and Rightmove has no control over the content. This property advertisement does not constitute property particulars. The information is provided and maintained by Savills, Harpenden. Please contact the selling agent or developer directly to obtain any information which may be available under the terms of The Energy Performance of Buildings (Certificates and Inspections) (England and Wales) Regulations 2007 or the Home Report if in relation to a residential property in Scotland.
*This is the average speed from the provider with the fastest broadband package available at this postcode. The average speed displayed is based on the download speeds of at least 50% of customers at peak time (8pm to 10pm). Fibre/cable services at the postcode are subject to availability and may differ between properties within a postcode. Speeds can be affected by a range of technical and environmental factors. The speed at the property may be lower than that listed above. You can check the estimated speed and confirm availability to a property prior to purchasing on the broadband provider's website. Providers may increase charges. The information is provided and maintained by Decision Technologies Limited. **This is indicative only and based on a 2-person household with multiple devices and simultaneous usage. Broadband performance is affected by multiple factors including number of occupants and devices, simultaneous usage, router range etc. For more information speak to your broadband provider.
Map data ©OpenStreetMap contributors.





