Town Head Fold, Holme, LA6

- PROPERTY TYPE
Detached
- BEDROOMS
4
- BATHROOMS
2
- SIZE
Ask agent
- TENUREDescribes how you own a property. There are different types of tenure - freehold, leasehold, and commonhold.Read more about tenure in our glossary page.
Freehold
Key features
- 4 bedrooms in total, 3 of which are generous doubles, with the master featuring its own en suite
- High end kitchen fixtures and fittings complemented by a sociable, zoned dining area
- A generous dual aspect living room featuring a stylish Everhot electric stove and access to the rear garden
- A driveway providing parking for up to three vehicles, along with a garage and covered carport area
- A generous, private rear garden offering an ideal space for relaxing and socialising
- Peaceful residential location
Description
This stunning four bedroom detached home, formerly the show house for the development, is the epitome of style and elegance, enjoying breathtaking countryside views from its spacious rear garden. From the moment you step inside, the impressive open plan layout creates an immediate sense of space and light. At the heart of the home is the beautifully appointed kitchen/dining room, installed in 2022, featuring high end NEFF cooking appliances. The open plan design flows seamlessly into the dining area, making it an ideal setting for entertaining and family gatherings.
The living room is a bright and inviting space, with dual aspect windows that flood the room with natural light and French doors opening onto the rear garden. Neutral décor and tasteful styling create a warm, welcoming atmosphere, complemented by an Everhot electric stove that adds a cosy touch during the colder months. A convenient downstairs cloakroom completes the ground floor.
Upstairs, the property offers four generously sized bedrooms, three of which benefit from built in storage. The master bedroom enjoys a stylish en suite shower room, while the family bathroom features a bath with overhead electric shower and a range of fitted storage.
To the front of the property, a garage, driveway with an electric car charger and covered car port provide parking for up to three vehicles. The popular village of Holme is conveniently located with easy access to both junctions 35 and 36 of the M6 motorway and is on the main line 555 bus route that runs through the village regularly linking with Lancaster, Kendal and the Lake District. Within the village there is a pub and the village primary school is rated GOOD by Ofsted. The local secondary school, Dallam, is located 3 miles away in the village of Milnthorpe. There are activities all year round for all ages ranging from toddler and baby groups to walking societies and the women's institute. There is also a cricket club, various community projects, Holy Trinity church and a crown green bowling club.
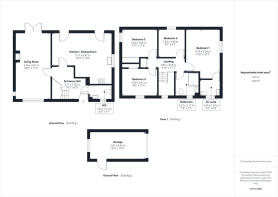
GROUND FLOOR
Entrance hallway
8'5" x 10'2" (2.59m x 3.11m)
A spacious, light-filled entrance hallway welcomes you into the home, featuring a warm wooden floor, useful understairs storage and plenty of room to remove coats and shoes before moving through to the main accommodation.
Living Room
11'2" x 20'9" (3.41m x 6.34m)
A spacious, light and bright living room enjoying dual-aspect views to the front and rear with fitted bookcases and storage. A Everhot electric stove is set within the chimney recess, complete with a wooden mantle, creates a cosy focal point. French doors to the rear allow natural light to pour in and offer effortless access to the garden, while the wooden flooring continues seamlessly from the hallway.
Kitchen/ dining room
10'4" x 19'0" (3.17m x 5.81m)
A good range of cream Shaker style base and wall units pair beautifully with sleek work surfaces and a wooden floor. Integrated appliances include a waist height NEFF Hide & Slide oven with matching microwave, dishwasher, electric induction hob, tall fridge/freezer, washing machine and tumble dryer. A peninsular creates the ideal spot for informal dining, while a door from the kitchen provides direct access to the garage and offers front facing views. The dining area is subtly zoned from the kitchen and is a bright, welcoming space filled with natural light from the door leading out to the rear garden. There is ample room here to comfortably accommodate a table for six.
Cloakroom
7'1" x 4'4" (2.17m x 1.34m)
A must have for any busy home, this bright and airy, ground floor cloakroom features a concealed cistern WC and a hand basin set within a vanity unit, offering excellent storage and a clean, streamlined finish.
FIRST FLOOR
Master Bedroom
10'6" x 15'4" (3.21m x 4.68m)
A well proportioned master bedroom enjoying elevated views over the side of the property towards open countryside. Bespoke built in wardrobes and drawers frame the window, maximising storage and making excellent use of the space.
Ensuite
6'3" x 5'2" (1.92m x 1.59m)
Leading from the master bedroom, the bright and contemporary en suite features a separate shower cubicle with a mains fed shower and aqua panelled splashbacks, along with a basin set within a vanity unit and a concealed cistern WC.
Bedroom 2
11'4" x 8'9" (3.47m x 2.67m)
Currently arranged as a home office, this double bedroom features built in wardrobes and enjoys lovely views over the rear garden and surrounding fields.
Bedroom 3
11'4" x 8'7" (3.46m x 2.63m)
A spacious double bedroom featuring fitted wardrobes and additional storage surrounding the bed, complemented by a fitted dressing table. Elevated views add a lovely sense of openness to the room.
Bedroom 4
8'1" x 8'7" (2.48m x 2.63m)
Benefitting from lovely views over the surrounding fields, this room makes an ideal nursery or home office.
Bathroom
7'1" x 7'3" (2.17m x 2.23m)
With a corner bath and overhead electric shower, basin and concealed cistern WC, this bathroom offers excellent fitted storage with natural light enhancing the space. A heated towel rail adds a practical finishing touch.
Landing
2'10" x 11'7" (0.87m x 3.55m)
A bright and airy landing with access to the attic, which is fully boarded with additional shelving in the eaves, and all first floor rooms. A tall stairwell window allows natural light to cascade through the space, enhancing the sense of openness.
Garage
17'9" x 8'9" (5.43m x 2.67m)
Accessed via either the main front door or the side entrance, this space includes a rear facing window overlooking the garden. There is extensive storage above both this area and the car port, providing plenty of useful overhead space. Power and lighting are also installed.
Externally
At the front and side of the property are low maintenance beds planted with mature shrubs. The block paved driveway provides parking for up to three vehicles and leads to the garage with a Hive electric car charger present. The fantastic south facing rear garden has been thoughtfully designed for easy upkeep and offers excellent privacy, with year round interest from established bushes, shrubs and trees. Multiple seating areas are positioned throughout, including a paved and gravelled area outside the kitchen/diner—perfect for al fresco dining and summer BBQs.
Useful Information
House built - 2004.
Tenure - Freehold.
Council tax band - E (Westmorland and Furness Council).
Heating - Gas central heating.
Drainage - Mains.
WhatWords location - ///reassured.totals.piston.
Anti-Money Laundering Regulations
In compliance with Government legislation, all purchasers are required to undergo identification checks under the Anti-Money Laundering (AML) Regulations once an offer on a property has been accepted. These checks are mandatory, and the purchase process cannot proceed until they are successfully completed. Failure to complete these checks will prevent the purchase from progressing.
A specialist third-party company / compliance partner will carry out these checks.
Cost:
- £42.00 (inc. VAT) for a single purchaser, or £36.00 (inc. VAT) per person for couple or group purchases (including contributions from gift-givers), provided all payments are made in a single transaction.
- The charge for purchases under a company name is £120.00 (inc. VAT).
The fee is non-refundable and must be paid before a Memorandum of Sale is issued. The cost includes obtaining relevant data, manual verifications, and monitoring as required.
Brochures
Brochure 1- COUNCIL TAXA payment made to your local authority in order to pay for local services like schools, libraries, and refuse collection. The amount you pay depends on the value of the property.Read more about council Tax in our glossary page.
- Band: E
- PARKINGDetails of how and where vehicles can be parked, and any associated costs.Read more about parking in our glossary page.
- Garage,Off street
- GARDENA property has access to an outdoor space, which could be private or shared.
- Yes
- ACCESSIBILITYHow a property has been adapted to meet the needs of vulnerable or disabled individuals.Read more about accessibility in our glossary page.
- Ask agent
Town Head Fold, Holme, LA6
Add an important place to see how long it'd take to get there from our property listings.
__mins driving to your place
Get an instant, personalised result:
- Show sellers you’re serious
- Secure viewings faster with agents
- No impact on your credit score
Your mortgage
Notes
Staying secure when looking for property
Ensure you're up to date with our latest advice on how to avoid fraud or scams when looking for property online.
Visit our security centre to find out moreDisclaimer - Property reference RX706076. The information displayed about this property comprises a property advertisement. Rightmove.co.uk makes no warranty as to the accuracy or completeness of the advertisement or any linked or associated information, and Rightmove has no control over the content. This property advertisement does not constitute property particulars. The information is provided and maintained by Waterhouse Estate Agents, Milnthorpe. Please contact the selling agent or developer directly to obtain any information which may be available under the terms of The Energy Performance of Buildings (Certificates and Inspections) (England and Wales) Regulations 2007 or the Home Report if in relation to a residential property in Scotland.
*This is the average speed from the provider with the fastest broadband package available at this postcode. The average speed displayed is based on the download speeds of at least 50% of customers at peak time (8pm to 10pm). Fibre/cable services at the postcode are subject to availability and may differ between properties within a postcode. Speeds can be affected by a range of technical and environmental factors. The speed at the property may be lower than that listed above. You can check the estimated speed and confirm availability to a property prior to purchasing on the broadband provider's website. Providers may increase charges. The information is provided and maintained by Decision Technologies Limited. **This is indicative only and based on a 2-person household with multiple devices and simultaneous usage. Broadband performance is affected by multiple factors including number of occupants and devices, simultaneous usage, router range etc. For more information speak to your broadband provider.
Map data ©OpenStreetMap contributors.





