
20 Cospatrick Court, Coldstream, TD12 4EL

- PROPERTY TYPE
Semi-Detached
- BEDROOMS
3
- BATHROOMS
2
- SIZE
1,130 sq ft
105 sq m
- TENUREDescribes how you own a property. There are different types of tenure - freehold, leasehold, and commonhold.Read more about tenure in our glossary page.
Freehold
Key features
- Beautifully Presented 3-Bedroom Home
- Close To Amenities
- Off Street Parking
- Attractive Landscaped Garden
- Dining Kitchen
- Peaceful Location Overlooking Green
Description
Located on the edge of the historic market town of Coldstream in the heart of the Scottish Borders, this beautifully presented three-bedroom, two-bathroom home offers modern living in a peaceful and desirable residential setting. Set within the highly regarded Leet Haugh development, the property boasts spacious, turn-key accommodation spread over two well-designed floors, complemented by private parking, an attractive landscaped rear garden, and open rural views.
Upon entering the home, you are welcomed by a bright and inviting entrance hallway that leads to a generous sitting room, a perfect space for relaxing or entertaining. To the rear, the stylish kitchen-dining room is fitted with timeless cream shaker units and integrated appliances, with French doors opening directly onto the rear garden. A spacious wc completes the ground floor.
Upstairs, the master bedroom benefits from its own modern en-suite shower room, while two further well-proportioned bedrooms offer ideal space for family, guests, or a home office. A fresh and contemporary family bathroom serves the remaining bedrooms.
To the rear, the landscaped garden is fully enclosed and features a well-maintained lawn, patio area, flower beds and timber shed, providing an excellent space for outdoor living. The property also benefits from private parking to the front.
This outstanding family home combines quality, comfort, and convenience in a scenic location, making it ideal for those seeking a quiet yet well-connected lifestyle. With its modern interior, attractive landscaped garden, and proximity to local amenities, countryside walks, and schools, early viewing is highly recommended.
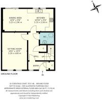
Accommodation Comprises
Ground Floor- Entrance Hallway, Sitting Room, Kitchen-Dining Room, WC.
First Floor- Principal Bedroom with En -Suite, Two Further Bedrooms, Family Bathroom.
Garden & Grounds - Landscaped Rear Garden, Shed, Private Parking.
Distances
Kelso 9.5 miles, Duns 10 miles, Berwick upon Tweed Train Station 16 miles, Edinburgh 49 miles, Melrose 27 miles. (all distances are approximate).
General Remarks
What3words
Tenure
Freehold
Council Tax
Band D.
Energy Efficiency Rating
Band B
Services
Mains electricity, water, drainage, gas central heating. Fibre broadband available.
Fixtures and Fittings
All fitted carpets, curtain poles, blinds, some light fittings and integrated appliances form part of the sale.
Listing and Conservation
20 Cospatrick Court is not listed nor does it lie within a conservation area.
Agents Note
£26 pcm maintenance agreement through FBR Seed
Disclaimer
Important Notice
These particulars are for information only and do not constitute an offer or contract. No statement by Paton & Co or any joint agent (written or verbal) constitutes a representation or warranty. Neither the seller nor agents accept liability for any error, omission or misstatement, and such shall not entitle any party to rescind, claim compensation or bring action.
The property is sold as seen with all faults and subject to all rights, burdens, servitudes and wayleaves. Measurements, plans and photographs are approximate and for guidance only. Planning, building regulations and other consents, and all services, have not been verified or tested. Purchasers must satisfy themselves by inspection and professional advice. No liability is accepted for costs incurred if a property is sold or withdrawn.
Successful purchasers must complete AML and proof of funds checks (£25 + VAT per person). See
Brochures
Property Brochure- COUNCIL TAXA payment made to your local authority in order to pay for local services like schools, libraries, and refuse collection. The amount you pay depends on the value of the property.Read more about council Tax in our glossary page.
- Band: D
- PARKINGDetails of how and where vehicles can be parked, and any associated costs.Read more about parking in our glossary page.
- Yes
- GARDENA property has access to an outdoor space, which could be private or shared.
- Private garden
- ACCESSIBILITYHow a property has been adapted to meet the needs of vulnerable or disabled individuals.Read more about accessibility in our glossary page.
- Ask agent
Energy performance certificate - ask agent
20 Cospatrick Court, Coldstream, TD12 4EL
Add an important place to see how long it'd take to get there from our property listings.
__mins driving to your place
Affordability
About Paton & Co, Berwick-upon-Tweed
Paton & Co Estate Agents, 17F Windmill Way West, Ramparts Business Park, Berwick-upon-Tweed, TD15 1TB

Get an instant, personalised result:
- Show sellers you’re serious
- Secure viewings faster with agents
- No impact on your credit score
Notes
Staying secure when looking for property
Ensure you're up to date with our latest advice on how to avoid fraud or scams when looking for property online.
Visit our security centre to find out moreDisclaimer - Property reference a10bfb62-e820-4f9f-a2f3-8f5d06f58061. The information displayed about this property comprises a property advertisement. Rightmove.co.uk makes no warranty as to the accuracy or completeness of the advertisement or any linked or associated information, and Rightmove has no control over the content. This property advertisement does not constitute property particulars. The information is provided and maintained by Paton & Co, Berwick-upon-Tweed. Please contact the selling agent or developer directly to obtain any information which may be available under the terms of The Energy Performance of Buildings (Certificates and Inspections) (England and Wales) Regulations 2007 or the Home Report if in relation to a residential property in Scotland.
*This is the average speed from the provider with the fastest broadband package available at this postcode. The average speed displayed is based on the download speeds of at least 50% of customers at peak time (8pm to 10pm). Fibre/cable services at the postcode are subject to availability and may differ between properties within a postcode. Speeds can be affected by a range of technical and environmental factors. The speed at the property may be lower than that listed above. You can check the estimated speed and confirm availability to a property prior to purchasing on the broadband provider's website. Providers may increase charges. The information is provided and maintained by Decision Technologies Limited. **This is indicative only and based on a 2-person household with multiple devices and simultaneous usage. Broadband performance is affected by multiple factors including number of occupants and devices, simultaneous usage, router range etc. For more information speak to your broadband provider.
Map data ©OpenStreetMap contributors.






