Hendrefoilan Drive, Swansea, SA2 7GP

- PROPERTY TYPE
Detached
- BEDROOMS
4
- SIZE
Ask developer
- TENUREDescribes how you own a property. There are different types of tenure - freehold, leasehold, and commonhold.Read more about tenure in our glossary page.
Ask developer
Key features
- Three storey
- Dual aspect living room
- Dual aspect kitchen/dining room with French doors to garden
- Utility cupboard
- Cloakroom
- Dual aspect study
- En-suite main bedroom
- Two family bathrooms
- Full gas fired central heating
- Parking Space
Description
Generous and adaptable, with bright dual-aspect living room leads into the kitchen and dining area opening to the garden through French doors. A utility room and downstairs WC add everyday ease, while five bedrooms are arranged across two floors, including two en-suites, a study and a family bathroom.
Plot 244
Tenure: Freehold
Length of lease: N/A
Annual ground rent amount (£): N/A
Ground rent review period (year/month): N/A
Annual service charge amount (£): TBC
Service charge review period (year/month): Yearly
Council tax band (England, Wales and Scotland): TBC
Reservation fee (£): 500
For more information about the optional extras available in our new homes, please visit the St Modwen Homes website.
Parking - Off Street Parking
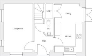
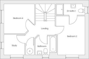
Room Dimensions
- Living Room - 3.08 x 5.25 metre
- Dining - 2.92 x 2.2 metre
- Kitchen - 2.92 x 3.05 metre
- Utility - .74 x 1.57 metre
- WC - .92 x 1.75 metre
- Bedroom 2 - 2.83 x 3.98 metre
- En-Suite 2 - 2.98 x 1.18 metre
- Bedroom 4 - 3.14 x 3.05 metre
- Study - 2.14 x 2.11 metre
- Bathroom - 2.12 x 1.97 metre
- Bedroom 1 - 3.14 x 5.25 metre
- Bedroom 3 - 2.83 x 5.25 metre
- En-Suite 1 - 2.14 x 1.97 metre
- COUNCIL TAXA payment made to your local authority in order to pay for local services like schools, libraries, and refuse collection. The amount you pay depends on the value of the property.Read more about council Tax in our glossary page.
- Ask developer
- PARKINGDetails of how and where vehicles can be parked, and any associated costs.Read more about parking in our glossary page.
- Yes
- GARDENA property has access to an outdoor space, which could be private or shared.
- Yes
- ACCESSIBILITYHow a property has been adapted to meet the needs of vulnerable or disabled individuals.Read more about accessibility in our glossary page.
- Ask developer
Energy performance certificate - ask developer
Hendrefoilan Drive, Swansea, SA2 7GP
Add an important place to see how long it'd take to get there from our property listings.
__mins driving to your place
Get an instant, personalised result:
- Show sellers you’re serious
- Secure viewings faster with agents
- No impact on your credit score
About St Modwen Homes - South West
Part of wider regeneration
This luxurious development has been part of a vast regeneration project, turning the previous student accommodation site into a thriving neighbourhood complete with public open spaces, and natural walkways. This transformative development has created a thriving community, with families able to benefit from the close proximity to stunning coastal countryside.
Close to amenities
Less than four miles from Swansea City Centre, homeowners at Hendrefoilan Park have all of the shops, bars, restaurants and leisure facilities of the city a short drive away. On top of this, the glorious Swansea coastline offers a range of outdoor opportunities, perfect for those looking to unwind over a weekend with loved ones.
Great transport links
Situated just off the A4418, Hendrefoilan Park has excellent transport link to nearby Swansea and further afield. Also, for those looking to get around via train, you can access the rail network via Gowerton station which is less than ten minutes’ drive away.
Excellent schools nearby
A key consideration for any family looking to move home is the education provided within their potential new catchment area. As well as the nearby Olchfa School, as part of the wider regeneration of this area, the local primary school has been extended to specifically cater for families within the Hendrefoilan Park development.
Affordability
Notes
Staying secure when looking for property
Ensure you're up to date with our latest advice on how to avoid fraud or scams when looking for property online.
Visit our security centre to find out moreDisclaimer - Property reference 8216040000010_4_32_101991. The information displayed about this property comprises a property advertisement. Rightmove.co.uk makes no warranty as to the accuracy or completeness of the advertisement or any linked or associated information, and Rightmove has no control over the content. This property advertisement does not constitute property particulars. The information is provided and maintained by St Modwen Homes - South West. Please contact the selling agent or developer directly to obtain any information which may be available under the terms of The Energy Performance of Buildings (Certificates and Inspections) (England and Wales) Regulations 2007 or the Home Report if in relation to a residential property in Scotland.
*This is the average speed from the provider with the fastest broadband package available at this postcode. The average speed displayed is based on the download speeds of at least 50% of customers at peak time (8pm to 10pm). Fibre/cable services at the postcode are subject to availability and may differ between properties within a postcode. Speeds can be affected by a range of technical and environmental factors. The speed at the property may be lower than that listed above. You can check the estimated speed and confirm availability to a property prior to purchasing on the broadband provider's website. Providers may increase charges. The information is provided and maintained by Decision Technologies Limited. **This is indicative only and based on a 2-person household with multiple devices and simultaneous usage. Broadband performance is affected by multiple factors including number of occupants and devices, simultaneous usage, router range etc. For more information speak to your broadband provider.
Map data ©OpenStreetMap contributors.





