
Portmans, North Curry, Taunton, Somerset, TA3

- PROPERTY TYPE
Detached
- BEDROOMS
4
- BATHROOMS
2
- SIZE
Ask agent
- TENUREDescribes how you own a property. There are different types of tenure - freehold, leasehold, and commonhold.Read more about tenure in our glossary page.
Freehold
Key features
- Four bedroom detached home
- Fully modernised throughout
- Shaker style kitchen with oak worktops
- Two reception rooms with wood burners
- Master with one en-suite
- Well presented garden
- Drive with off road parking
- Sought after area
- Cul-de-Sac location
Description
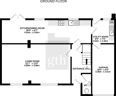
Presenting a beautifully upgraded contemporary home set within a peaceful cul-de-sac in the highly desirable village of North Curry. Carefully modernised by the current owners, the property offers a refined finish throughout, featuring elegant oak internal doors, quality flooring, and a thoughtfully designed kitchen that forms the focal point of the home. The kitchen is finished in a timeless light grey shaker style, complemented by solid oak worktops and a breakfast bar that creates an ideal space for casual dining and entertaining. This bright and airy room benefits from dual windows and French doors opening onto the garden, allowing natural light to flood in throughout the day. Integrated appliances include a microwave, twin eye-level ovens, a dishwasher, and a generous induction hob, catering perfectly to modern living. Subtle plinth lighting enhances the space in the evenings, creating a softer, more relaxed atmosphere, while a wood burning stove adds warmth and character during cooler months.
A well-proportioned utility room provides additional practicality, offering ample storage and workspace, with direct access through to the garage. The sitting room is generously sized and beautifully presented, featuring a high quality Brintons style carpet that adds both comfort and a touch of luxury underfoot. This inviting space is ideal for relaxing or entertaining, with a second wood burner enhancing the cosy ambience and making it a welcoming retreat for family and guests alike. Upstairs, the property comprises four well-sized bedrooms, three of which are spacious doubles. The principal bedroom enjoys the benefit of its own en-suite, offering both comfort and convenience.
Tucked away in a quiet and attractive cul-de-sac, this home enjoys a prime position within the highly regarded village of North Curry, an area celebrated for its strong sense of community and charming surroundings. Life here offers a perfect balance between peaceful rural living and everyday convenience. At the heart of the village, a delightful square lined with characterful period homes creates a welcoming setting, complemented by a range of useful amenities. Residents benefit from an inn, a well regarded primary school, a health centre, a cosy café, and a post office, all contributing to the village’s appeal and practicality. Surrounded by the scenic beauty of the Somerset Levels, the area provides wonderful opportunities for walking, cycling, and enjoying the outdoors. For a wider selection of shops, leisure facilities, and schooling, the nearby town of Taunton is easily accessible, making this location ideal for those seeking a countryside lifestyle without feeling remote.
Externally, the property occupies a generous plot with a neatly maintained frontage, including a driveway that provides ample off-road parking and access to the single garage. A side gate offers convenient access through to the rear garden.
The garden itself has been cleverly arranged with ease of upkeep in mind. The lower level is predominantly paved, creating a practical and low-maintenance space ideal for outdoor seating and entertaining. Steps lead up to a second tier, which is mainly laid to lawn, adding a touch of greenery and space for relaxation or play. To the rear, a charming circular patio area finished with slate chippings provides a perfect spot to unwind and enjoy warm evening sunshine. A small shed is also positioned at the back of the garden, offering useful additional storage.
Brochures
Particulars- COUNCIL TAXA payment made to your local authority in order to pay for local services like schools, libraries, and refuse collection. The amount you pay depends on the value of the property.Read more about council Tax in our glossary page.
- Band: F
- PARKINGDetails of how and where vehicles can be parked, and any associated costs.Read more about parking in our glossary page.
- Yes
- GARDENA property has access to an outdoor space, which could be private or shared.
- Yes
- ACCESSIBILITYHow a property has been adapted to meet the needs of vulnerable or disabled individuals.Read more about accessibility in our glossary page.
- Ask agent
Energy performance certificate - ask agent
Portmans, North Curry, Taunton, Somerset, TA3
Add an important place to see how long it'd take to get there from our property listings.
__mins driving to your place
Get an instant, personalised result:
- Show sellers you’re serious
- Secure viewings faster with agents
- No impact on your credit score
Affordability
Notes
Staying secure when looking for property
Ensure you're up to date with our latest advice on how to avoid fraud or scams when looking for property online.
Visit our security centre to find out moreDisclaimer - Property reference TAU260159. The information displayed about this property comprises a property advertisement. Rightmove.co.uk makes no warranty as to the accuracy or completeness of the advertisement or any linked or associated information, and Rightmove has no control over the content. This property advertisement does not constitute property particulars. The information is provided and maintained by Greenslade Taylor Hunt, Taunton. Please contact the selling agent or developer directly to obtain any information which may be available under the terms of The Energy Performance of Buildings (Certificates and Inspections) (England and Wales) Regulations 2007 or the Home Report if in relation to a residential property in Scotland.
*This is the average speed from the provider with the fastest broadband package available at this postcode. The average speed displayed is based on the download speeds of at least 50% of customers at peak time (8pm to 10pm). Fibre/cable services at the postcode are subject to availability and may differ between properties within a postcode. Speeds can be affected by a range of technical and environmental factors. The speed at the property may be lower than that listed above. You can check the estimated speed and confirm availability to a property prior to purchasing on the broadband provider's website. Providers may increase charges. The information is provided and maintained by Decision Technologies Limited. **This is indicative only and based on a 2-person household with multiple devices and simultaneous usage. Broadband performance is affected by multiple factors including number of occupants and devices, simultaneous usage, router range etc. For more information speak to your broadband provider.
Map data ©OpenStreetMap contributors.









