
Greenhills Way, Dalton-in-Furness, LA15 8FG

- PROPERTY TYPE
Semi-Detached
- BEDROOMS
3
- BATHROOMS
2
- SIZE
Ask agent
- TENUREDescribes how you own a property. There are different types of tenure - freehold, leasehold, and commonhold.Read more about tenure in our glossary page.
Freehold
Key features
- Modern Development Backing On To Open Countryside
- Stylish, Move In Ready Accomodation
- Driveway Parking For Two Vehicles
- Low Maintenance Gardens
- Contemporary Open-Plan Kitchen Diner
- Intergrated Appliances
- Separate Laundry Room
- Three Well-Porportioned Bedrooms
- Modern Fully Tiled Bathroom
- Desirable Location
Description
A beautiful family home set on the outskirts of Dalton, within a modern development backing onto open countryside, offering stylish, move-in ready accommodation. With driveway parking for two vehicles and low-maintenance gardens featuring artificial lawn and patio, this home is perfect for easy living. Inside, a bright lounge enjoys morning sunshine, while the contemporary open-plan kitchen diner provides an ideal space for family life, complete with patio doors, integrated appliances and separate laundry room. Upstairs offers three well-proportioned bedrooms, including two doubles with fitted wardrobes, and a modern fully tiled bathroom. An ideal home for families seeking comfort, space and convenience in a desirable location.
Location
What3Words///static.snail.lawfully
Description
Set on the outskirts of Dalton within a modern and sought-after development, this beautiful family home enjoys a pleasant outlook to the front and rear. Offering stylish, move-in ready accommodation, the property is perfectly suited to modern family living, with driveway parking for two vehicles and low-maintenance gardens to the side and rear, complete with artificial lawn and patio areas ideal for relaxing or entertaining.
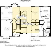
A welcoming porch leads into the entrance hallway, where stairs rise to the first floor with a useful storage cupboard beneath. From here, doors provide access to a convenient two-piece cloakroom, the kitchen, and the bright and airy family lounge, which is filled with natural morning light, creating a warm and inviting living space.
The heart of the home is the contemporary open-plan kitchen diner, designed with both practicality and style in mind. The kitchen features a range of modern cabinets and drawers extending across three walls, complemented by additional storage to one wall, an integrated oven, hob and extractor, sink unit, and space for an American-style fridge freezer. The dining area offers ample room for family meals and entertaining, with double doors opening directly onto the patio. A further door leads to a separate laundry room, fitted with base units, space for appliances, and external access to the garden.
Upstairs, the landing benefits from a large walk-in storage cupboard and leads to three well-proportioned bedrooms, including two doubles, both with fitted wardrobe furniture. The modern family bathroom is fully tiled and features a contemporary suite comprising a bath with shower screen and dual-head shower, WC, and a wash basin with storage drawers beneath.
This is an excellent opportunity to acquire a modern, well-appointed home in a desirable semi-rural location, offering comfort, convenience, and easy access to local amenities and surrounding countryside.
Tenure
Freehold.
Services
Mains gas, electricity, water and drainage.
Brochures
Brochure 1Brochure 2- COUNCIL TAXA payment made to your local authority in order to pay for local services like schools, libraries, and refuse collection. The amount you pay depends on the value of the property.Read more about council Tax in our glossary page.
- Band: C
- PARKINGDetails of how and where vehicles can be parked, and any associated costs.Read more about parking in our glossary page.
- Driveway
- GARDENA property has access to an outdoor space, which could be private or shared.
- Private garden
- ACCESSIBILITYHow a property has been adapted to meet the needs of vulnerable or disabled individuals.Read more about accessibility in our glossary page.
- Ask agent
Greenhills Way, Dalton-in-Furness, LA15 8FG
Add an important place to see how long it'd take to get there from our property listings.
__mins driving to your place
Get an instant, personalised result:
- Show sellers you’re serious
- Secure viewings faster with agents
- No impact on your credit score



Affordability
Notes
Staying secure when looking for property
Ensure you're up to date with our latest advice on how to avoid fraud or scams when looking for property online.
Visit our security centre to find out moreDisclaimer - Property reference S1662297. The information displayed about this property comprises a property advertisement. Rightmove.co.uk makes no warranty as to the accuracy or completeness of the advertisement or any linked or associated information, and Rightmove has no control over the content. This property advertisement does not constitute property particulars. The information is provided and maintained by Poole Townsend, Barrow-in-Furness. Please contact the selling agent or developer directly to obtain any information which may be available under the terms of The Energy Performance of Buildings (Certificates and Inspections) (England and Wales) Regulations 2007 or the Home Report if in relation to a residential property in Scotland.
*This is the average speed from the provider with the fastest broadband package available at this postcode. The average speed displayed is based on the download speeds of at least 50% of customers at peak time (8pm to 10pm). Fibre/cable services at the postcode are subject to availability and may differ between properties within a postcode. Speeds can be affected by a range of technical and environmental factors. The speed at the property may be lower than that listed above. You can check the estimated speed and confirm availability to a property prior to purchasing on the broadband provider's website. Providers may increase charges. The information is provided and maintained by Decision Technologies Limited. **This is indicative only and based on a 2-person household with multiple devices and simultaneous usage. Broadband performance is affected by multiple factors including number of occupants and devices, simultaneous usage, router range etc. For more information speak to your broadband provider.
Map data ©OpenStreetMap contributors.






