
11 Greengage Close, Malton, YO17 7FP

- PROPERTY TYPE
Detached
- BEDROOMS
4
- BATHROOMS
3
- SIZE
Ask agent
- TENUREDescribes how you own a property. There are different types of tenure - freehold, leasehold, and commonhold.Read more about tenure in our glossary page.
Freehold
Key features
- IMMACULATE DETACHED FAMILY HOME
- SPACIOUS OPEN PLAN KITCHEN
- FOUR GENEROUS DOUBLE BEDROOMS
- STUNNING MASTER SUITE FLOOR
- EN SUITE TO TWO BEDROOMS
- MODERN STYLISH FAMILY BATHROOM
- PRIVATE LOW MAINTENANCE GARDEN
- GARAGE WITH INTERNAL ACCESS
Description
Tucked away within the sought-after Taylor Wimpey development in Malton, 11 Greengage Close is an immaculately presented, detached four-bedroom family home offering exceptionally spacious and versatile accommodation throughout.
Upon entering, you are welcomed by a large central hallway which sets the tone for the space and quality on offer. To the right is a cosy yet well-proportioned lounge, complete with a window to the front aspect, creating a warm and inviting living space.
To the rear of the property, the home truly comes into its own with a stunning open-plan kitchen and dining area. Double doors from the hallway lead into this impressive space, where French doors open out onto a decked seating area in the garden, seamlessly blending indoor and outdoor living. Roof windows allow natural light to flood the room, enhancing the bright and airy feel. The kitchen is finished in modern, neutral tones with stylish white tiled splashback and light grey units. The space also benefits from a gas hob, double integrated electric ovens, and ample storage.
The first floor offers three generous double bedrooms and the family bathroom. Bedroom two is particularly impressive in size, featuring a double window to the front, an open-plan walk-in wardrobe area, and a contemporary en suite shower room. Bedrooms three and four are both comfortable doubles overlooking the rear garden. The family bathroom is beautifully finished, offering both a separate bath and shower, complemented by stylish green accents and white tiling.
Occupying the entire second floor is the outstanding principal bedroom suite. This expansive space is enhanced by four roof windows, creating a light-filled and private retreat. It also benefits from an en suite shower room and an additional storage room.
Externally, the property offers a neatly maintained and easily manageable garden, complete with a decking area ideal for entertaining and side access. To the front, there is off-road parking as well as additional on-street parking if required. The garage is conveniently accessed internally from the central hallway, adding further practicality.
Overall, this is a superbly presented, modern family home, ready for its next owners to move straight in and enjoy.
EPC Rating: C
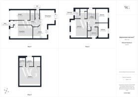
KITCHEN
3m x 3.58m
DINING ROOM
3.74m x 3.85m
LIVING ROOM
3.42m x 5.83m
MASTER BEDROOM
4.94m x 5.41m
MASTER EN-SUITE
2.28m x 1.67m
BEDROOM TWO
4.83m x 4.24m
EN-SUITE
2.57m x 1.36m
BEDROOM THREE
3.64m x 3.18m
BEDROOM FOUR
3.74m x 2.58m
GARAGE
2.55m x 5m
Disclaimer
Disclaimer
We take care to ensure our property details are accurate and fair, but they are for guidance only and do not form part of any contract. Measurements, floor plans, photographs, and descriptions are provided in good faith as a general guide, and should be checked by any prospective purchaser. We recommend that all buyers satisfy themselves on every aspect of the property before making a commitment to purchase.
- COUNCIL TAXA payment made to your local authority in order to pay for local services like schools, libraries, and refuse collection. The amount you pay depends on the value of the property.Read more about council Tax in our glossary page.
- Band: E
- PARKINGDetails of how and where vehicles can be parked, and any associated costs.Read more about parking in our glossary page.
- Yes
- GARDENA property has access to an outdoor space, which could be private or shared.
- Private garden
- ACCESSIBILITYHow a property has been adapted to meet the needs of vulnerable or disabled individuals.Read more about accessibility in our glossary page.
- Ask agent
Energy performance certificate - ask agent
11 Greengage Close, Malton, YO17 7FP
Add an important place to see how long it'd take to get there from our property listings.
__mins driving to your place
Get an instant, personalised result:
- Show sellers you’re serious
- Secure viewings faster with agents
- No impact on your credit score
Affordability
Notes
Staying secure when looking for property
Ensure you're up to date with our latest advice on how to avoid fraud or scams when looking for property online.
Visit our security centre to find out moreDisclaimer - Property reference a10a4775-0099-44a8-a4a2-00e9d93740cb. The information displayed about this property comprises a property advertisement. Rightmove.co.uk makes no warranty as to the accuracy or completeness of the advertisement or any linked or associated information, and Rightmove has no control over the content. This property advertisement does not constitute property particulars. The information is provided and maintained by Willowgreen Estate Agents, Ryedale. Please contact the selling agent or developer directly to obtain any information which may be available under the terms of The Energy Performance of Buildings (Certificates and Inspections) (England and Wales) Regulations 2007 or the Home Report if in relation to a residential property in Scotland.
*This is the average speed from the provider with the fastest broadband package available at this postcode. The average speed displayed is based on the download speeds of at least 50% of customers at peak time (8pm to 10pm). Fibre/cable services at the postcode are subject to availability and may differ between properties within a postcode. Speeds can be affected by a range of technical and environmental factors. The speed at the property may be lower than that listed above. You can check the estimated speed and confirm availability to a property prior to purchasing on the broadband provider's website. Providers may increase charges. The information is provided and maintained by Decision Technologies Limited. **This is indicative only and based on a 2-person household with multiple devices and simultaneous usage. Broadband performance is affected by multiple factors including number of occupants and devices, simultaneous usage, router range etc. For more information speak to your broadband provider.
Map data ©OpenStreetMap contributors.






