Darkey Lane, Stapleford, Nottingham, Nottinghamshire, NG9

- PROPERTY TYPE
Bungalow
- BEDROOMS
2
- BATHROOMS
1
- SIZE
Ask agent
- TENUREDescribes how you own a property. There are different types of tenure - freehold, leasehold, and commonhold.Read more about tenure in our glossary page.
Freehold
Description
Key Features:
-Two bedroom detached bungalow
-Ample off-street parking and detached garage
-Conservatory overlooking the rear garden
-Ready to move into condition
-No onward chain
-Level garden plot
-Low-maintenance front and rear gardens
-Popular residential location
Situated within a well-regarded residential area of Stapleford, this well-presented two-bedroom detached bungalow offers comfortable single-level living on a level and easy-to-maintain plot. The property is offered with no onward chain and is ready to move into, making it an appealing option for a range of buyers including downsizers and those seeking a convenient and manageable home.
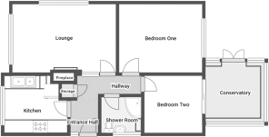
The accommodation begins with an entrance hall featuring useful storage, leading through to a bright lounge and dining area. This welcoming living space benefits from windows to both the front and side aspects, allowing natural light to fill the room and creating a comfortable setting for everyday living.
The fitted kitchen is arranged with a range of wall, base and drawer units, along with a breakfast bar and space for appliances. The property also benefits from a newly fitted gas-fired combination boiler installed in February 2026.
There are two bedrooms within the bungalow. The principal bedroom overlooks the rear garden and includes fitted wardrobes for convenient storage. The second bedroom is currently used as an additional sitting room and provides direct access to the conservatory via patio doors.
The conservatory offers a pleasant additional living area with views across the rear garden and French doors opening onto the patio, creating a bright and relaxing space that can be enjoyed throughout the year.
A shower room completes the accommodation and includes a wash basin, WC and corner shower cubicle with electric shower, finished with tiled walls and a heated towel rail.
Outside:
The property is set back from the road with a front garden featuring gravel and ornamental shrubs. A driveway provides ample off-street parking and leads to a detached brick-built garage equipped with power, lighting and an up-and-over door.
To the rear, the enclosed garden has been landscaped with ease of maintenance in mind. It features a patio area adjacent to the conservatory, decorative gravel sections, additional paved areas and a selection of shrubs, creating an attractive yet manageable outdoor space.
Location:
The property enjoys a convenient location close to local amenities, including a nearby convenience store and regular bus services. The centre of Stapleford is also within easy reach, offering a variety of shops, healthcare facilities and everyday services.
Transport links are excellent, with Bardills Island Park and Ride located a short distance away, providing access to the Nottingham Express Transit with connections to Queen's Medical Centre, Beeston and Nottingham city centre.
Summary:
This well-maintained detached bungalow combines comfortable living space, practical features and a convenient location. With a conservatory, garage, off-street parking and low-maintenance gardens, the property offers an excellent opportunity for buyers seeking a ready-to-move-into home in a popular residential setting.
Viewing is highly recommended to fully appreciate the size and potential of this property.
Buyer Process: Our customers use British Homebuyers to either purchase or assist in selling properties quickly and reliably. Therefore any new applicants to purchase are subject to vetting to ensure they meet strict criteria.
Exclusivity Fee:
You can secure the purchase by paying an exclusivity fee of £2,000. This grants the buyer exclusive rights to proceed with the purchase for the duration of the conveyancing process, during which time the seller agrees to remove the property from the market and not negotiate with other parties.
The exclusivity fee is returned to the buyer upon successful completion of the purchase.
A processing fee of £200 is required in order to draw up an exclusive legally binding contract between the buyer and seller. This agreement sets out the terms of exclusivity and seller commitment but does not constitute an exchange of contracts.
This arrangement provides buyers with reassurance that the property is secured exclusively for them, reducing the risk of gazumping and unnecessary aborted costs.
Disclaimer
The particulars are set out as a general outline only for the guidance of intended purchasers and do not constitute, any part of a contract. Nothing in these particulars shall be deemed to be a statement that the property is in good structural condition or otherwise nor that any of the services, appliances, equipment or facilities are in good working order. Purchasers should satisfy themselves of this prior to purchasing. The photograph(s) depict only certain parts of the property. It should not be assumed that any contents/furniture etc. photographed are included in the sale. It should not be assumed that the property remains as displayed in the photograph(s). No assumption should be made with regard to parts of the property that have not been photographed. Any areas, measurements, aspects or distances referred to are given as a GUIDE ONLY and are NOT precise. If such details are fundamental to a purchase, purchasers must rely on their own enquiries. Descriptions of the property are subjective and are used in good faith as an opinion and NOT as a statement of fact. Please make further inquiries to ensure that our descriptions are likely to match any expectations you may have.
Lounge / Diner
4.9m x 3.3m
Kitchen
3.18m x 2.74m
Bedroom 1
3.94m x 3.33m
Bedroom 2
2.77m x 2.72m
Conservatory
2.8m x 2.9m
Shower Room
- COUNCIL TAXA payment made to your local authority in order to pay for local services like schools, libraries, and refuse collection. The amount you pay depends on the value of the property.Read more about council Tax in our glossary page.
- Band: TBC
- PARKINGDetails of how and where vehicles can be parked, and any associated costs.Read more about parking in our glossary page.
- Driveway
- GARDENA property has access to an outdoor space, which could be private or shared.
- Yes
- ACCESSIBILITYHow a property has been adapted to meet the needs of vulnerable or disabled individuals.Read more about accessibility in our glossary page.
- Ask agent
Darkey Lane, Stapleford, Nottingham, Nottinghamshire, NG9
Add an important place to see how long it'd take to get there from our property listings.
__mins driving to your place
Get an instant, personalised result:
- Show sellers you’re serious
- Secure viewings faster with agents
- No impact on your credit score
Affordability
Notes
Staying secure when looking for property
Ensure you're up to date with our latest advice on how to avoid fraud or scams when looking for property online.
Visit our security centre to find out moreDisclaimer - Property reference BHO260536. The information displayed about this property comprises a property advertisement. Rightmove.co.uk makes no warranty as to the accuracy or completeness of the advertisement or any linked or associated information, and Rightmove has no control over the content. This property advertisement does not constitute property particulars. The information is provided and maintained by British Homesellers, National. Please contact the selling agent or developer directly to obtain any information which may be available under the terms of The Energy Performance of Buildings (Certificates and Inspections) (England and Wales) Regulations 2007 or the Home Report if in relation to a residential property in Scotland.
*This is the average speed from the provider with the fastest broadband package available at this postcode. The average speed displayed is based on the download speeds of at least 50% of customers at peak time (8pm to 10pm). Fibre/cable services at the postcode are subject to availability and may differ between properties within a postcode. Speeds can be affected by a range of technical and environmental factors. The speed at the property may be lower than that listed above. You can check the estimated speed and confirm availability to a property prior to purchasing on the broadband provider's website. Providers may increase charges. The information is provided and maintained by Decision Technologies Limited. **This is indicative only and based on a 2-person household with multiple devices and simultaneous usage. Broadband performance is affected by multiple factors including number of occupants and devices, simultaneous usage, router range etc. For more information speak to your broadband provider.
Map data ©OpenStreetMap contributors.




