Vinehall Road, Mountfield, Robertsbridge, TN32
- PROPERTY TYPE
Residential Development
- SIZE
Ask agent
Key features
- Development opportunity
- Approx. 0.9 acre site
- Charming 19th Century buildings
- RR/2024/816/P
- Planning for 5 further dwellings
- 5 dwellings with tenants already generating income
- Scope and Space for further development
- Ideally located for Battle and Robertsbridge mainline stations
Description
AP Estate Agents are delighted to present Old Stable Yard, an exceptional development opportunity set between the historic towns of Battle and Robertsbridge. This charming 19th century stable yard has already begun its transformation, offering huge potential for investors and developers.
The site currently comprises five completed dwellings, all converted by the present owners and generating a healthy rental income. Further details on the existing tenancies and income can be provided on request.
Planning permission has been granted for the conversion of three additional buildings, along with the creation of new parking areas to serve all dwellings. The buildings are arranged around an attractive central courtyard and include a mix of 1, 2 and 3 bedroom homes, with both single storey and two storey accommodation. Several units benefit from generous private gardens, and the overall site extends to approximately 0.9 acres.
In the opinion of the current owners, an unused area of land within the plot may offer scope for further development, subject to the necessary planning consents. This area sits adjacent to the new parking provision included within the approved plans.
Existing Rental Properties
Park View – 2 bed detached, single storey, large garden, garage – 100 sq.m
Wisteria Cottage – 2 bed mid terrace, two storey – 68 sq.m
Stable Cottage – 3 bed mid terrace, two storey – 75 sq.m
Garden Cottage – 2 bed mid terrace, large garden, two storey – 73 sq.m
Garden Flat – 1 bed ground floor cottage, large garden – 28 sq.m
PLEASE NOTE: Energy Performance Certificates can be found for each of the above properties - using postcode TN32 5JN
Proposed Units (Planning Ref: RR/2024/816/P)
Full details can be viewed on the Rother District Council planning portal.
Unit 1 – 55 sq.m
Unit 2 – 56 sq.m
Unit 3 – 101 sq.m
Unit 4 – 71 sq.m
Unit 5 – 58 sq.m
Summary
Old Stable Yard represents a rare chance to acquire a part completed residential development in a highly desirable rural setting. With five income producing homes already in place, planning permission for further conversions, and potential for additional development (subject to planning), this is an outstanding opportunity for those seeking a versatile and rewarding project.
LOCATION
Tucked away in the rolling countryside of the High Weald Area of Outstanding Natural Beauty, This development enjoys a wonderfully setting that feels a world apart from the pace of town life. Here, open fields and woodland walks create a sense of calm that is increasingly rare, yet the location remains remarkably well connected for day to day living just off the A21.
Just a short distance away lies Robertsbridge, a charming village with a rich history dating back to the 12th century. Originally built around a Cistercian abbey, the village has grown into a welcoming community with timber framed buildings, independent shops, cafés and a mainline station offering direct services to London. A little further is the historic town of Battle, named after the famous Battle of Hastings in 1066. Its imposing Abbey, characterful high street and selection of eateries make it a favourite destination for both locals and visitors.
Despite its rural feel, the development is ideally placed for access to a number of larger towns. Hastings (11 miles) and Eastbourne (18 miles) offer extensive shopping, seafront attractions and leisure facilities, while Hailsham (12 miles) and Uckfield (14 miles) provide convenient everyday amenities. For those who enjoy a broader choice of boutiques, restaurants and cultural venues, Tunbridge Wells (17 miles) and Brighton (28 miles) are both within easy reach. Gatwick Airport, a major hub for international travel, is approximately 38 miles away.
Families are well served by a selection of respected schools, including Vinehall School, which sits close by, as well as Robertsbridge Community College and several primary schools in the surrounding villages. The area offers a blend of state and independent options, making it a practical choice for households of all ages. For commuters, Robertsbridge Station is just a short drive away, providing direct rail links to London Charing Cross, London Bridge and Waterloo East, with journey times of around 1 hour 15 minutes. This makes the location particularly appealing to those seeking a quieter lifestyle without losing easy access to the City.
DIRECTIONS:
Existing Planning Permission
RR/2024/816/P
Variation of conditions 2 and 10 imposed on RR/2022/2991/P to allow amendments to the internal layout of units 1 and 2 to provide a home office to each unit; proposed wider window to unit 1 due to enlargement of home office; the side doors noted to be fixed shut will now be blocked up and installation of new window to unit 2.
Approved with Conditions
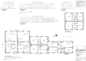
LOBBY 1
1.036m x 2.398m (3' 5" x 7' 10")
LIVING ROOM 1
3.764m x 3.092m (12' 4" x 10' 2")
LIVING ROOM 2
3.731m x 3.5m (12' 3" x 11' 6")
KITCHEN 1
2.471m x 4.669m (8' 1" x 15' 4")
BEDROOM 1 1
3.823m x 3.730m (12' 7" x 12' 3")
BEDROOM 2 1
2.595m x 3.716m (8' 6" x 12' 2")
BATHROOM 1
2.365m x 1.856m (7' 9" x 6' 1")
LOBBY 2
1.2m x 1.52m (3' 11" x 5' 0")
OPEN PLAN LIVINGROOM AND KITCHEN
2.715m x 2.715m (8' 11" x 8' 11")
BEDROOM
3m x 2.4m (9' 10" x 7' 10")
BATHROOM 2
1.8m x 1.8m (5' 11" x 5' 11")
KITCHEN 2
3.305m x 4.928m (10' 10" x 16' 2")
UTILITY
1.199m x 1.265m (3' 11" x 4' 2")
LIVING ROOM
4.065m x 4.931m (13' 4" x 16' 2")
BEDROOM 1 2
3.160m x 4.946m (10' 4" x 16' 3")
BEDROOM 2 2
3.087m x 3.943m (10' 2" x 12' 11")
BATHROOM 3
1.4m x 2.2m (4' 7" x 7' 3")
AGENTS NOTES
This information has been provided on the understanding that all negotiations on the property are conducted through AP Estate Agents. They do not constitute any part of an offer or contract. The information including any text, photographs, virtual tours and videos and plans are for the guidance of prospective purchasers only and represent a subjective opinion. They should not be relied upon as statements of fact about the property, its condition or its value. And accordingly any information given is entirely without responsibility on the part of the agents or seller(s). A detailed survey has not been carried out, nor have any services, appliances or specific fittings been tested. All measurements and distances are approximate. A list of the fixtures and fittings for the property which are included in the sale (or may be available by separate negotiation) will be provided by the Seller's Solicitors. Where there is reference to planning permission or potential, such information is giv...
Brochures
Brochure 1Vinehall Road, Mountfield, Robertsbridge, TN32
NEAREST STATIONS
Distances are straight line measurements from the centre of the postcode- Robertsbridge Station2.2 miles
- Battle Station3.1 miles
- Etchingham Station4.4 miles
Notes
Disclaimer - Property reference 30003701. The information displayed about this property comprises a property advertisement. Rightmove.co.uk makes no warranty as to the accuracy or completeness of the advertisement or any linked or associated information, and Rightmove has no control over the content. This property advertisement does not constitute property particulars. The information is provided and maintained by AP Estate Agents, Hailsham. Please contact the selling agent or developer directly to obtain any information which may be available under the terms of The Energy Performance of Buildings (Certificates and Inspections) (England and Wales) Regulations 2007 or the Home Report if in relation to a residential property in Scotland.
Map data ©OpenStreetMap contributors.







