Woodford Place, Wembley

- PROPERTY TYPE
Terraced
- BEDROOMS
3
- BATHROOMS
1
- SIZE
Ask agent
- TENUREDescribes how you own a property. There are different types of tenure - freehold, leasehold, and commonhold.Read more about tenure in our glossary page.
Freehold
Key features
- CUL-DE-SAC LOCATION, WOODFORD PLACE HA9
- THREE BEDROOMS
- REAR EXTENSION -
- SEPARATE RECEPTION ROOM
- THROUGH LOUNGE
- MID TERRACE CHAIN-FREE
- GARAGE
- OFF STREET PARKING FOR 2 CARS
- GAS CENTRAL HEATING + DOUBLE GLAZED
- REAR GARDEN WITH PATIO
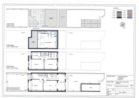
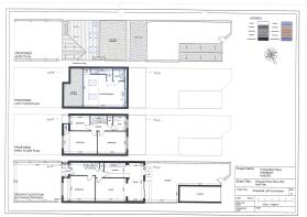
Description
To the rear, the property benefits from an extension leading onto a private garden, complete with a garage. To the front, there is off-street parking for two cars. The home also features double glazed windows, gas central heating, and well-proportioned bedrooms throughout.
Located in a popular residential area, the property is conveniently positioned close to local amenities, schools, and transport links, making it an ideal purchase for families and investors alike. A 2m rear extension has already been completed, which adds valuable living space. In addition, planning has been applied for a loft conversion, and this will be included as part of the sale of the property.
ENCLOSED PORCH 6' 6" x 3' 3" (1.98m x 0.99m) Double glazed windows and door to front, exterior security light
ENTRANCE HALL 16' 4" x 5' 9" (4.98m x 1.75m) Entrance hall with double glazed windows to the front, radiator, laminate wood flooring, power points, and under-stairs cupboard.
RECEPTION ROOM 14' 8" x 12' 2" (4.47m x 3.71m) Double glazed windows to front, radiator, power points, tv aerial, laminate wood floor,
THROUGH LOUNGE 22' 8" x 17' 9" (6.91m x 5.41m) The through lounge benefits from a rear extension, creating a spacious and bright living area. It features a comfortable seating area and a dining space, both illuminated by double glazed windows to the rear. Laminate wood flooring runs throughout, complemented by a radiator and multiple power points. Double glazed sliding doors open directly onto the rear garden, seamlessly connecting indoor and outdoor living.
KITCHEN 19' 7" x 18' 7" (5.97m x 5.66m) The kitchen is fitted with a standard range of wall and base units, offering ample storage and workspace. It features an inset gas hob with an extractor fan, a wall-mounted oven, and a single sink with mixer taps. The walls are tiled, and the floor is laid with laminate wood. Power points are conveniently positioned throughout, and the kitchen is plumbed for a washing machine and dryer. A wall-mounted gas combi boiler is installed, and double glazed patio doors open onto the rear garden. The kitchen opens seamlessly into the rear extension, creating a flowing space for cooking and dining.
LANDING 10' 6" x 6' 0" (3.2m x 1.83m) Built in storage cupboard housing the water tank, with access to a loft that is fully insulated and boarded for additional storage.
BEDROOM ONE 15' 8" x 10' 7" (4.78m x 3.23m) Double bedroom featuring double glazed windows to the front, radiator, and laminate flooring. The room includes floor-to-ceiling built-in wardrobes with an integrated dressing table area and multiple power points.
BEDROOM TWO 13' 4" x 9' 3" (4.06m x 2.82m) The second double bedroom overlooks the rear and is filled with natural light from the double glazed windows. It features floor-to-ceiling built-in wardrobes with an integrated dressing table, providing excellent storage and functionality. The room is finished with a radiator, laminate flooring, and conveniently placed power points.
BEDROOM THREE 9' 6" x 6' 9" (2.9m x 2.06m) The third bedroom faces the front and is currently used as a lounge/TV room. It features double glazed windows, a radiator, laminate flooring, and conveniently placed power points, offering a flexible space for a bedroom, study, or additional living area.
FAMILY BATHROOM The family bathroom is bright and well-appointed, featuring a panelled bath with a hand shower, a pedestal sink with mixer taps, and a low-level WC. The walls and floor are fully tiled, while double glazed windows to the rear provide natural light. Additional features include a radiator, extractor fan, and shaver point, creating a practical and comfortable space for the whole family.
GARAGE 20' 6" x 8' 0" (6.25m x 2.44m) The garage, located at the rear of the garden, is currently used as a relaxing seating area. It is equipped with power points and shelving, providing a versatile space for leisure or storage.
REAAR GARDEN The rear garden is easily accessed via steps from the kitchen patio door or sliding doors from the through lounge, creating a seamless flow between indoor and outdoor living. It offers a patio area perfect for entertaining, a paved pathway leading through a lawn with bushes and plants, and a greenhouse for gardening enthusiasts. An exterior water tap adds convenience, and secure rear access to the street is provided via a locked gate. The property also offers potential to extend further, subject to planning permission (STPP).
FRONT DRIVEWAY The front of the property features a private driveway with off-street parking for two cars, bordered by walls to the sides and a dropped curb for easy access.
- COUNCIL TAXA payment made to your local authority in order to pay for local services like schools, libraries, and refuse collection. The amount you pay depends on the value of the property.Read more about council Tax in our glossary page.
- Band: E
- PARKINGDetails of how and where vehicles can be parked, and any associated costs.Read more about parking in our glossary page.
- Garage,Off street
- GARDENA property has access to an outdoor space, which could be private or shared.
- Yes
- ACCESSIBILITYHow a property has been adapted to meet the needs of vulnerable or disabled individuals.Read more about accessibility in our glossary page.
- Ask agent
Woodford Place, Wembley
Add an important place to see how long it'd take to get there from our property listings.
__mins driving to your place
Get an instant, personalised result:
- Show sellers you’re serious
- Secure viewings faster with agents
- No impact on your credit score
Affordability
Notes
Staying secure when looking for property
Ensure you're up to date with our latest advice on how to avoid fraud or scams when looking for property online.
Visit our security centre to find out moreDisclaimer - Property reference 102974003006. The information displayed about this property comprises a property advertisement. Rightmove.co.uk makes no warranty as to the accuracy or completeness of the advertisement or any linked or associated information, and Rightmove has no control over the content. This property advertisement does not constitute property particulars. The information is provided and maintained by Hamilton Estates, Wembley. Please contact the selling agent or developer directly to obtain any information which may be available under the terms of The Energy Performance of Buildings (Certificates and Inspections) (England and Wales) Regulations 2007 or the Home Report if in relation to a residential property in Scotland.
*This is the average speed from the provider with the fastest broadband package available at this postcode. The average speed displayed is based on the download speeds of at least 50% of customers at peak time (8pm to 10pm). Fibre/cable services at the postcode are subject to availability and may differ between properties within a postcode. Speeds can be affected by a range of technical and environmental factors. The speed at the property may be lower than that listed above. You can check the estimated speed and confirm availability to a property prior to purchasing on the broadband provider's website. Providers may increase charges. The information is provided and maintained by Decision Technologies Limited. **This is indicative only and based on a 2-person household with multiple devices and simultaneous usage. Broadband performance is affected by multiple factors including number of occupants and devices, simultaneous usage, router range etc. For more information speak to your broadband provider.
Map data ©OpenStreetMap contributors.




