
River Gardens Walk, London

Letting details
- Let available date:
- 29/03/2026
- Deposit:
- £2,711A deposit provides security for a landlord against damage, or unpaid rent by a tenant.Read more about deposit in our glossary page.
- Min. Tenancy:
- Ask agent How long the landlord offers to let the property for.Read more about tenancy length in our glossary page.
- Let type:
- Long term
- Furnish type:
- Ask agent
- Council Tax:
- Ask agent
- PROPERTY TYPE
Apartment
- BEDROOMS
2
- BATHROOMS
1
- SIZE
Ask agent
Key features
- NO DEPOSIT OPTION AVAILABLE
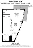
- Stylish 2 double bedroom apartment (902 sq. ft.)
- High-spec kitchen with integrated appliances
- Built-in wardrobes & ample storage
- Access to residents’ gym, pool & tennis court
- Underfloor heating in main bathroom
- SPACIOUS LOUNGE
- Measuring 902 Sq. ft overall
Description
This elegant two bedroom apartment comes with a wrap around balcony with an impressive specification and is located in the East Greenwich area, within 0.7 miles of Cutty Sark DLR
Additional benefits include, Under floor heating in main bathroom, Fully fitted kitchen with Double Oven, Hob, Hood, Washer/Dryer, Fridge Freezer and Dishwasher, High specification bathroom, Ample storage, Video entry system and Concierge, Residents Gym & Pool.
The development really has raised the bar for new build apartments in the South East with city professionals seizing this enviable opportunity to set up home. The lifestyle and feel of this development has been met with impressive acclaim from residents who have been living in the first two phases.
The central location offers a great choice of transport links, with Cutty Sark DLR Station within 0.7 miles with a scheduled journey time of 12 minutes to Canary Wharf, with Maze Hill National Rail Station approximately a five minute walk, which stops at Cannon Street, within 17 minutes. North Greenwich Jubilee Line is only one stop from Canary Wharf and is on a frequent bus route, or a brisk walk away from The River Gardens. West Greenwich DLR is also a picturesque walk away from the development, as to is the Thames Clipper - perfect for a unique journey into the City of London and O2 arena.
The apartment is offered part furnished and is available for immediate occupation. Priced extremely competitively, this flat will certainly not hang around for long. Call our team today to arrange your appointment.
This property is available with a Deposit Free option which means that instead of paying a traditional five weeks security deposit, you pay a fee of one weeks rent + VAT (subject to a minimum of £120 + VAT) to become a member of a deposit free renting scheme which significantly reduces the up-front costs. This fee is non-refundable and is not a deposit so cannot be used towards covering the cost of any future damage.
Disclaimer
Felicity J Lord Estate Agents also offer a professional, ARLA accredited Lettings and Management Service. If you are considering renting your property in order to purchase, are looking at buy to let or would like a free review of your current portfolio then please call the Lettings Branch Manager on the number shown above.
Felicity J Lord Estate Agents is the seller's agent for this property. Your conveyancer is legally responsible for ensuring any purchase agreement fully protects your position. We make detailed enquiries of the seller to ensure the information provided is as accurate as possible. Please inform us if you become aware of any information being inaccurate.
Brochures
Material InformationBrochure- COUNCIL TAXA payment made to your local authority in order to pay for local services like schools, libraries, and refuse collection. The amount you pay depends on the value of the property.Read more about council Tax in our glossary page.
- Ask agent
- PARKINGDetails of how and where vehicles can be parked, and any associated costs.Read more about parking in our glossary page.
- Ask agent
- GARDENA property has access to an outdoor space, which could be private or shared.
- Yes
- ACCESSIBILITYHow a property has been adapted to meet the needs of vulnerable or disabled individuals.Read more about accessibility in our glossary page.
- Ask agent
River Gardens Walk, London
Add an important place to see how long it'd take to get there from our property listings.
__mins driving to your place



Notes
Staying secure when looking for property
Ensure you're up to date with our latest advice on how to avoid fraud or scams when looking for property online.
Visit our security centre to find out moreDisclaimer - Property reference 0428_FJL042801075. The information displayed about this property comprises a property advertisement. Rightmove.co.uk makes no warranty as to the accuracy or completeness of the advertisement or any linked or associated information, and Rightmove has no control over the content. This property advertisement does not constitute property particulars. The information is provided and maintained by Felicity J Lord, Greenwich Lettings. Please contact the selling agent or developer directly to obtain any information which may be available under the terms of The Energy Performance of Buildings (Certificates and Inspections) (England and Wales) Regulations 2007 or the Home Report if in relation to a residential property in Scotland.
*This is the average speed from the provider with the fastest broadband package available at this postcode. The average speed displayed is based on the download speeds of at least 50% of customers at peak time (8pm to 10pm). Fibre/cable services at the postcode are subject to availability and may differ between properties within a postcode. Speeds can be affected by a range of technical and environmental factors. The speed at the property may be lower than that listed above. You can check the estimated speed and confirm availability to a property prior to purchasing on the broadband provider's website. Providers may increase charges. The information is provided and maintained by Decision Technologies Limited. **This is indicative only and based on a 2-person household with multiple devices and simultaneous usage. Broadband performance is affected by multiple factors including number of occupants and devices, simultaneous usage, router range etc. For more information speak to your broadband provider.
Map data ©OpenStreetMap contributors.





