4 results
Lot 1 – Existing three bed bungalow, and adjacent plot with outline planning permission for a three / four bed detached bungalow.
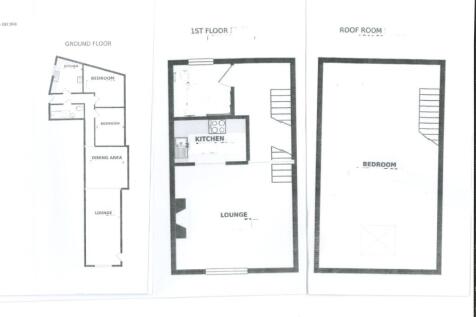
Comprises self-contained 4-bed flat at second and third floor. Completely refurbished in 2024 to a high standard.
Comprises self-contained 2-bed flat at first floor. Completely refurbished in 2024 to a high standard.
GUIDE PRICE £65,000+ FOR SALE BY PUBLIC AUCTION ON WEDNESDAY 10TH DECEMBER 2025 AT THE HALSTON HOTEL, CARLISLE - For bidding registration, please visit auctionhousecumbria.co.uk
Copyright © 2000-2025 Rightmove Group Limited. All rights reserved. Rightmove prohibits the scraping of its content. You can find further details here.