
Louise Street, Chester
Renovating this property
Extension potential
Already extended
Year built
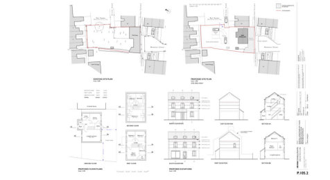
Planning approval nearby
Special things to consider
This does not guarantee planning permission will be granted nor guarantee the property can be extended. You should consult an expert for advice if you plan to extend.
Extensions in Cheshire West and Chester
Local insights on residential planning permission and extensions in the last 2 years
Residential planning applications
Planning approval
Time to approval
Special things to consider
Local authority
rear extension estimates
Build cost (Excl. VAT)
Value add
Project length
rear planning approval
side extension estimates
Build cost (Excl. VAT)
Value add
Project length
side planning approval
loft extension estimates
Build cost (Excl. VAT)
Value add
Project length
loft planning approval
Rightmove earns a commission - at no added cost to you - if you acquire any products or services from Resi via any link on this page to resi.co.uk.
The content on this page is provided by Resi Design Ltd. and is for general guidance only. Neither Rightmove or Resi offers any warranties or guarantees on the accuracy of any information displayed and accepts no liability for any loss, damage, or costs incurred as a result of reliance on such information. Always seek independent and professional advice before making decisions related to property improvements or renovations.



_0.png)







