Commercial Properties For Sale in Calne, Wiltshire
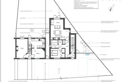
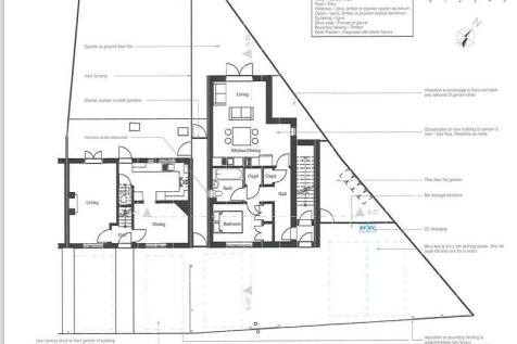
A building plot with approved planning permission with conditions for two new one bedroom apartments. These properties will offer open plan living dining kitchen, one double bedroom, allocated parking and a private garden for each property. There will be a double bedroom with two double built in ...
A prominent and well positioned Development Opportunity in the centre of Calne totalling 5,123 sq ft over two floors.The unit benefits from planning permission for conversion to two shops, five workshops and nine offices under planning number: 20/07270/FUL.
A building plot with detail planning permission for a 1,564 sq ft (145.2 sqm) detached home for the 'Over 55s'. This home will offer a triple aspect living space with high vaulted ceiling and access onto south westerly facing garden. There will be three bedrooms-each with an en-suite. One of the ...
A building plot with approved planning permission with conditions for two new one bedroom apartments. These properties will offer open plan living dining kitchen, one double bedroom, allocated parking and a private garden for each property. There will be a double bedroom with two double built in ...




