Commercial Properties For Sale in Capelulo, Penmaenmawr, Conwy (County of)
Paid partnerships can play a role in listing order
Development Land with Outline Planning Permission for 3 Detached Dwellings. Nestled in the charming coastal town of Penmaenmawr, this development land offers a unique opportunity for those looking to invest in prime building land. The site enjoys an elevated position, providing stunning ...
The central shopping area of Penmaenmawr is known as Pant yr Afon. The centre was developed in 1870 and are sheltered by a Victorian arcade with glass roof. No 1 has been used as a Hairdressing Salon and comprises a DOUBLE FRONTED SHOP with 2 ROOMS UPSTAIRS, KITCHEN AREA and W.C. Outside there is...
Located in the centre of the village under a Victoria arcade, a VACANT SHOP PREMISES with vacant possession and FREEHOLD. The shop has been trading in Antiques and Collectables and although offered for sale vacant the current antique stock can be purchased at valuation if required. The shop has a...
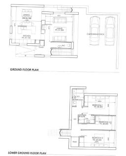
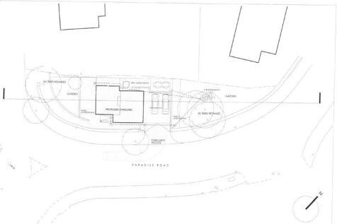
An exciting investment opportunity to own this plot of land beautifully situated in an elevated position overlooking the sea and The Great Orme. Within close proximity to the centre of Penmaenmawr, it's a highly desirable location. There is planning permission for a 2 storey, detached dwelli...
FOR SALE BY ONLINE AUCTION - Lot 46 - Parcel of Land; ONLINE AUCTION from 19th April - 21st April A Parcel of land located within the coastal town of Penmaenmawr The site sits within an established area and offers potential for a variety of uses subject to the necessary planning cons...
FOR SALE BY ONLINE AUCTION - Lot 54 - Land with Potential; ONLINE AUCTION from 19th May - 21st May An opportunity to acquire a parcel of land within the established coastal town of Penmaenmawr. The land is positioned within a residential setting and may suit a variety of uses subject...


