Commercial Properties For Sale in Cornwall And Isles Of Scilly
Paid partnerships can play a role in listing order
An attached three storey period building dating to the 1880‘s, originally constructed as a Chapel, features of which are evident today and with a front extension in 1926 to form the front now cafe area (former showroom). The property is not Listed. The property really is presented in very g...
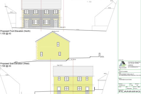
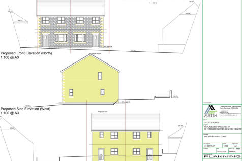
- Fantastic residential development opportunity - Situated in the charming village of Blackwater approximately 6 miles from Truro, Cornwall's capital - Planning reference: PA13/09488 for the development of 6 properties - The planning consent is for 2 x 2 bed semi detached houses, 3 x 3 bed house...
The property currently comprises two interconnecting units, however this will be blocked up upon completion to provide a self contained unit. The current owner will continue to run their business from Unit 3 (the left hand unit). The property is currently arranged to provide a showroom area to th...
The property comprises a detached industrial unit, currently configured to provide a tile showroom at ground floor level, together with an industrial storage area incorporating a dock leveller and roller shutter loading door for ease of access. A full mezzanine floor has been installed, offering ...
An attractive 3 storey property with double fronted ground floor retail accommodation, further potential retail space on the first floor and storage on the second floor. There are additional storage areas on all floors and there are staff welfare facilities on the first floor. The unit had been...
A level parcel of potential commercial development land well positioned on the popular S t. Columb Major Business Park, close to Newquay Airport and the A30. The land includes mature landscaping to the northern and eastern boundaries. See for an aerial video of the ...
A spacious licensed cafe / restaurant enjoying a prominent trading location in the centre of Tintagel on Cornwall's dramatic North Coast Refurbished 72-cover restaurant area with many character features, bar servery, equipped commercial kitchen, office and store room First floor 2-bedroom self-co...
A versatile 2-storey premises set in an enviable position overlooking the harbour. The property has until recently traded as an amusement arcade under the sui generis use class. The property is well suited to a variety of uses including restaurant, retail, leisure etc and has scope for further redev
Converted former Methodist Chapel Prominent central village location between Redruth and Falmouth Offers refurbished trading areas on ground & first floor levels Rear office/kitchen area and ancillary storage Car parking for circa six cars EPC is being commissioned
A substantial and individually designed detached family home offering well-proportioned accommodation spanning approximately 3,358 sq ft (312 sq m), set on a generous plot in the picturesque village of Delaware, Gunnislake. This versatile residence benefits from outstanding Tamar Valley views, fl...
Mixed retail and residential investment Current income £25,500 pa Large ground floor retail unit with the benefit of forecourt trading Separately accessed spacious 3 bedroom maisonette apartment let on an AST Located opposite the main Post Office, close to Tesco Extra and Railway Station EPC Rati...
Commercial development land available on a freehold basis. The land forms part of proposals for the wider redevelopment of this site, the balance intended for residential development - all of which is consented. See red line on the layout plan for the commercial aspect. Plans have been approved for
20 Church Street is a well located, Grade II listed period building set over four floors with a small, enclosed courtyard to the rear. The property benefits with detailed planning consent to create either one large or two smaller retail units on the ground floor and two x two bedroom maisonettes on


