Residential development for sale
Former Sheaf Of Wheat, Chapel Street, St. Ives, Cornwall, TR26 2LS
- SIZE AVAILABLE
4,095 sq ft
380 sq m
- SECTOR
Residential development for sale
Key features
- Cleared land for residential development in central St Ives
- Extant permission for 5 new build dwellings
- 0.094 acres (0.038 hectares)
- Three parking spaces
- One, 4 bedroom home Two, 2 bedroom homes Two, 3 bedroom homes
- Unusual opportunity for development within popular coastal town
- Of interest to self build buyers and local developers
Description
Location
St Ives is a seaside harbour town in Cornwall which lies on the Celtic Sea. The town is well known as one of Cornwall's most desirable locations having a resident population of around 11,200 in addition to benefitting from a significant amount of tourism. The town is linked to the main railway line by a branch between St Ives and St Erth.
The former Sheaf of Wheat site is located on Chapel Street at the junction of North Terrace and ,Wesley Place. It provides for an excellent location within the town, close to the harbour and beaches.
Accommodation
All areas are approximate and measured in accordance with the RICS Property Measurement (2nd Edition) on a net / gross internal basis.
Unit Style GIA (m2)
1 2 bed 83.5
2 3 bed 109.5
3 3 bed 109.5
4 4 bed 98.
5 2 bed 60.8
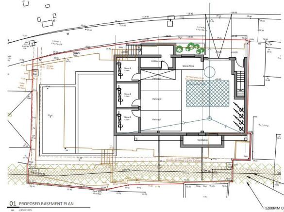
Planning
Planning permission PA17/05153 and certificate of lawfulness following demolition to secure the consent under PA17/10793. All plans available via the Cornwall Online Planning Register.
Please note: Images curtesy of CAD Architects, Truro.
Overall site site 0.094 acres with the finished building providing a gross internal of 594 sqm.
Rent / Price
OIEO £350,000
Business Rates
The properties will be assessed for council tax banding in completion.
Services
We understand that mains electricity, water and drainage were connected to the property however these services will have been capped to allow for demolition. Interested parties should make their own enquiries.
EPC
Assessed on completion of works.
Legal Fees
Each party to be responsible for their own legal fees in relation to this transaction.
VAT
All figures quoted are exclusive of VAT if applicable.
Brochures
Former Sheaf Of Wheat, Chapel Street, St. Ives, Cornwall, TR26 2LS
NEAREST STATIONS
Distances are straight line measurements from the centre of the postcode- St. Ives Station0.2 miles
- Carbis Bay Station1.3 miles
- Lelant Station2.8 miles
Notes
Disclaimer - Property reference 21320FH. The information displayed about this property comprises a property advertisement. Rightmove.co.uk makes no warranty as to the accuracy or completeness of the advertisement or any linked or associated information, and Rightmove has no control over the content. This property advertisement does not constitute property particulars. The information is provided and maintained by Vickery Holman, Leisure. Please contact the selling agent or developer directly to obtain any information which may be available under the terms of The Energy Performance of Buildings (Certificates and Inspections) (England and Wales) Regulations 2007 or the Home Report if in relation to a residential property in Scotland.
Map data ©OpenStreetMap contributors.




