Commercial Properties For Sale in Cuffley, Potters Bar, Hertfordshire
Paid partnerships can play a role in listing order
*For sale via secure sale online bidding: terms and conditions apply.* We are pleased to offer to auction this plot that is currently mainly grassland sites which clearly offer immediate opportunities for a variety of uses from leisure, grazing, equestrian and other associated uses. The site i...
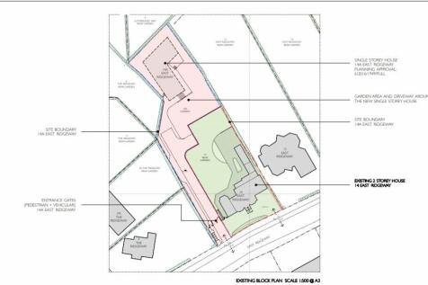
** PROBABLY THE BEST VIEW IN HERTFORDSHIRE ** A Rare Opportunity to Build Two Contemporary Dream Homes on The Ridgeway, Cuffley. Nestled within 2.0 acres of serene countryside, this exclusive opportunity offers unrivalled panoramic views of Northaw Valley’s rolling gre...
**Planning Permission Granted ** Planning granted for a split level 4-bedroom detached home with the principal accommodation set at the lower level facing onto the garden / deck area. The front of the house faces south, and the principal rooms face east across the rear. The ...
Located on the highly sought-after Vineyards Road, this exceptional plot of land sits adjacent to and opposite existing residential properties, presenting a fantastic speculative opportunity in a well-established and desirable area just north of London and the M25. The site primarily c...






