Commercial Properties For Sale in Diss, Norfolk
Paid partnerships can play a role in listing order
- Let investment
- Grade II listed building
- Excellent location on St Nicholas Street
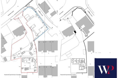
Vehicle Repair Workshop and Showroom, located approx. 2.9 miles east of Diss just off the A140 Ipswich/Norwich Road. The total Gross Internal Area of the buildings is 794.64sqm (8,553sqft). The total site area as outlined in red is approx. 0.44 acres (subject to survey).
The property benefits from development potential at the rear currently used in part as a service yard and a car park. There is also a lay-by to the front of the shops which is used for customer parking. Diss is an attractive and historic market town located approxi...
A rare opportunity to acquire a small collection of three matching log cabins set within generous grounds. One cabin serves as a permanent residence, currently used as the manager’s home, while the remaining two operate as year-round holiday lets with 30-day maximum stays per occupier. The main r...
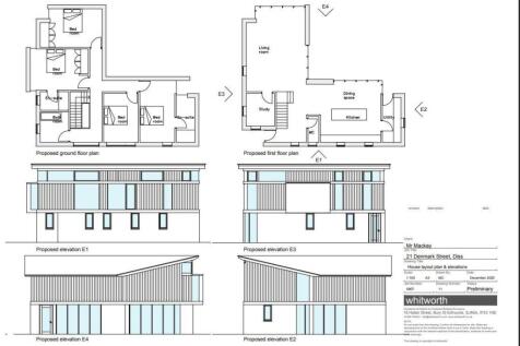
Known as The Crimea, this stunning former agricultural railway building presents a rare and exciting opportunity to create a truly unique contemporary home in the Norfolk countryside. Full planning permission has already been granted (reference 2024/2735) for a bold and imaginative conversion.