Land For Sale in East Riding Of Yorkshire
Gated Land at 310 Northgate, Cottingham, East Yorkshire, HU16 5RN The Site (0.16acres approx.) The site comprises of a unique development opportunity (with a full planning permission granted 22/03940/PLF) within the popular residential location of Cottingham. The succ...
A fantastic opportunity to acquire an established and profitable lifestyle business and well-appointed three bedroom bungalow. The residential accommodation extends to approximately 157.37 sq. (1,694 sq.ft), with an additional 745.49 sq.m (8,024 sq.ft) of commercial buildings and kennels...
A rare town centre development opportunity. The Council is seeking expressions of interest for the purchase and redevelopment of its land at Lockwood Street and Middle Street South, Driffield. The total site area is 3.12 acres (1.26 hectares) or thereabouts.
The site comprises an undeveloped area of land lying immediately adjacent to the very busy A63. The site is accessed directly from the A63 and is bounded to the north by an embankment. The total site area including the embankment is 3 acres. Of the 3-acre site, 2.5 acres are developable land. I...
The property comprises of a former residential care home with 325 Spring Bank West previously having been used as ancillary offices to the care home. The property lies in a largely residential area and has in the past been six individual residencies. The Sunny Bank property comprises a series o...
The property occupies a prominent site that was previously home to a two-storey nightclub building, which was demolished in 2021. The site now offers a level, cleared development opportunity extending to approximately 0.30 acres (0.12 hectares), providing excellent potential for a range of future...
FOR SALE BY AUCTION: Terms and conditions apply. We are pleased to offer to auction this plot of land well located at Bridlington Road. The plot measures approximately 2.54 acres (10,279.02 sqm) with a perimeter of roughly 488.36m. Please note: We have not inspected this site.
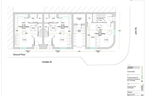
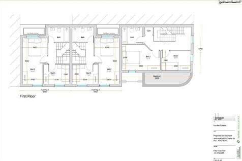
The site, measuring approximately 0.04 acres, has full planning consent (Ref: 23/03537/FULL) granted on 24th July 2024 for the erection of three high-quality townhouses designed to integrate sympathetically with the existing Charles Street streetscape. The architecture incorporates traditional ma...
Falkland Road is located approximately 4.5 miles east of Hull. The surrounding area comprises predominantly residential with local shops and amenities situated close by. The site is currently a plot historically forming part of the adjacent former pub which has now been constructed to in...
For Sale / To Let - Design and build opportunity up to 527,000 sq ft. Capitol Park Goole is ready to fulfill the needs of any company looking for manufacturing or distribution facilities to service Yorkshire, the UK and Europe. The site benefits from outline planning consent for B1/B2 & B8 uses ...
Plot A comprises a 2.28 acre site with 5 buildings which are in a dilapidated condition together with 'Reckitts Chimney' a 141m tall chimney structure. Plot B comprises a industrial building of approx 3,000 sq ft on a large site with concreate surface finish Plot C compromises a development/ op...
Boothferry Point is a brand-new mixed-use scheme that offers the potential to secure commercial representation in the Howden/Goole area. With over 30 acres of proposed consented industrial development behind our scheme this would create approx. 1,000 jobs over the next 5 years. In the immediate...
The site is a 32 acre levelled development site forming the 4th Phase of the very successful Kelleythorpe Industrial Estate. Land is available for sale with initially a minimum of 2 acres being the minimum plot size. Alternatively design and build opportunities will be considered both on a le...
230.9 acres productive free draining arable land within a ring fence and good central access track. * 230.9 acres free draining arable land * Grade 3 soils suitable for cereals and root crops * Opportunities for stewardship income * 23.54 acres grassland and pond available adjoining as L...











