Commercial Properties For Sale in Enfield Lock, Enfield, Greater London
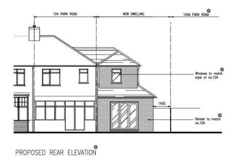
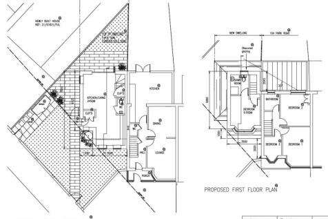
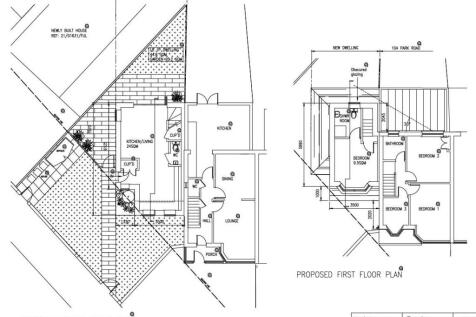
PLANNING PERMISSION GRANTED! Knights are proud to offer this unique development opportunity, located within 0.3 miles of Enfield Lock Station. This fantastic plot of land comes with approved planning permission for the construction of a one bedroom house which benefits from a spacious lounge-dine...
The site is a rectangular shaped parcel of land measuring 0.15 acres. The property is currently used by a tenant operating a motor trade business comprising of open storage hardstanding. The site is in an established residential location and within walking distance of Belmore Playing Fields and ...
The property comprises a ground floor retail unit currently being used as a laundrette and a two bedroom flat to the upper parts. The ground floor is roughly rectangular in shape and comprises a main sales area to the front with store and plant rooms to the rear. The flat is accessed via a side g...
Freehold investment opportunity * Shop plus Upper Part * Victorian Semi-Detached * Rear Yard * Private parking to the rear * To be sold with vacant possession * Prime road position * Walking distance to two Stations * Excellent transport links * Close to plenty of local amenit...
PLANNING PERMISSION GRANTED! Knights are proud to offer this unique development opportunity, located within 0.3 miles of Enfield Lock Station. This fantastic plot of land comes with approved planning permission for the construction of a one bedroom house which benefits from a spacious lounge-dine...







