to
Area
Price
-
Size
-
Property type
Office
Retail
Leisure / Hospitality
Industrial / Warehouses
Land / Development
Other
Property details
Must haves
Don’t show
Commercial Properties For Sale in Fort Nelson, Fareham, Hampshire
Paid partnerships can play a role in listing order
Prioritise properties with...
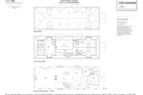
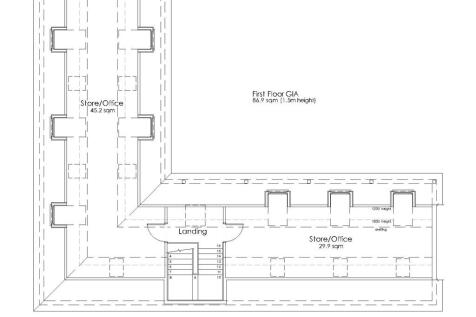
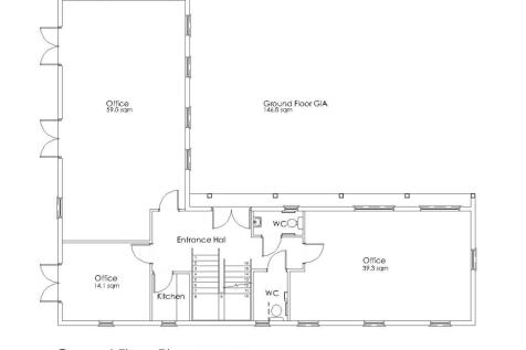
Meadow Way, Trampers Lane, North Boarhunt, Fareham, Hampshire, PO17 6BZ
Land
The site has a gradual slope down towards Trampers Lane. The plot is predominantly laid to shingle and grass with mature shrubs and trees. An existing detached former commercial building is located on site with consent for conversion to residential use. In addition consent has been granted for t...
Page of 1