Commercial Properties For Sale in Funtley, Fareham, Hampshire
Paid partnerships can play a role in listing order
The site has a gradual slope down towards Trampers Lane. The plot is predominantly laid to shingle and grass with mature shrubs and trees. An existing detached former commercial building is located on site with consent for conversion to residential use. In addition consent has been granted for t...
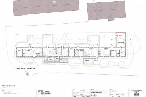
North Park began life as part of the grouped structures forming Knowle Farm, dating back to 17th century. The property features barn-style single storey office buildings, with 16 parking spaces and the benefit of planning permission for an extension and conversion to four residential units. Prev...
Heming & Co and Culvert House have been in the same family for many years. This is a great opportunity to purchase these two buildings located close to Wickham Square - one of the largest village market squares which benefits from a variety of shops and businesses. The Heming & Co building has a ...
Attractive approx. 5.55-acre equestrian holding in a rural yet accessible setting near Fareham. Full planning consent) for a private equestrian yard including stables, arena and horse-walker. River Meon frontage. Existing access off Fontley Road. Rare opportunity to create a bespoke private holding.