4 results
For sale by Modern Method of Auction; Starting Bid Price £950,000 plus Reservation Fee. • For Sale by Auction – T & C’s apply • Subject to an undisclosed Reserve Price • Reservation Fee applicable • The Modern Method of Auction <...
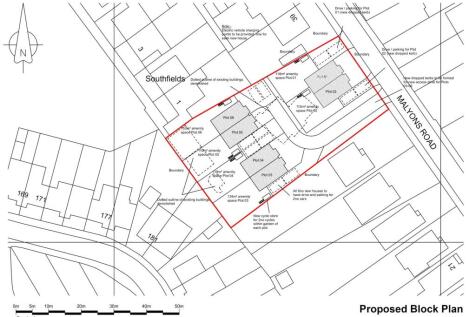
AUCTION SALE 16 December 2025 - Land with planning permission for an end of terrace houseFreehold siteFull vacant possessionTO SELL YOUR PROPERTY IN OUR NEXT AUCTION CALL US NOW
Woodland within the prestigious setting of Rowhill Road.
Land for sale off Clement Street, Dartford, Kent, 4 x plots of 1.2 acres of roadside land situated between the charming villages of Wilmington, Hawley and Hextable, north Kent. This portfolio offers prime arable land approx.. 2.5 miles south of Dartford.
Staying secure when looking for a property
Ensure you're up to date with our latest advice on how to avoid fraud or scams when looking for property online.
Map data ©️OpenStreetMap contributors.
Copyright © 2000-2025 Rightmove Group Limited. All rights reserved. Rightmove prohibits the scraping of its content. You can find further details here.