Commercial Properties For Sale in Loppergarth, Ulverston, Cumbria
An exciting and rare opportunity to acquire a central portion of this well-located development site, granted full planning permission under reference SL/2023/0400, dated 21st December 2023. The existing consent includes Class E (office/café) and Class C1 (hotel/apartment) uses. The current owners...
Residential Development Site - Ulverston (Central), Cumbria. This is an expanding South Cumbrian market town, benefitting from the thriving and stable local economy. Close to the shores of Morecambe Bay and the Lake District National Park. Approximately thirty minutes road...
An exciting and rare opportunity to acquire a central portion of this well-located development site, granted full planning permission under reference SL/2023/0400, dated 21st December 2023. The existing consent includes Class E (office/café) and Class C1 (hotel/apartment) uses. The current owners...
This is a very rare opportunity to build your dream home on this excellent plot of land subject to the relevant planning permission. This plot has previously has planning permission for a Dorma Bungalow which has now lapsed. Located in the most sought after area of Ulverston on Woodland Road a...
Offered for sale, freehold, with vacant possession, realistic price. For the erection of two detached dwellings With gardens, parking ,garages, open views at the rear. Super location to the village outskirts and convenient for all amenities. Planning Reference SL/2021/0571 Al...
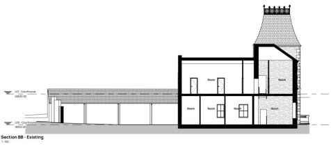
Forming part of the former, redundant Ulverston Police Station, this unique freehold site enjoys a central and highly convenient location in the heart of Ulverston. Offered with vacant possession, the property presents an exceptional development and investment opportunity with full planning permi...
Offered for sale, freehold, with vacant possession, realistic price. For the erection a detached dwellings With gardens, parking ,garages, open views at the rear. Super location to the village outskirts and convenient for all amenities. Planning Reference SL/2021/0571 All enq...
Offered for sale, freehold, with vacant possession, realistic price. For the erection a detached dwelling With gardens, parking ,garages, open views at the rear. Super location to the village outskirts and convenient for all amenities. Planning Reference SL/2021/0571 All enqui...










