Commercial Properties For Sale in Mill Knowe, Campbeltown, Argyllshire
An exceptional opportunity to acquire the Craigard House Hotel, well-established and thriving business perched above Campbeltown Loch. A charming property with breathtaking panoramic views, successful hotel, owners' accommodation, flexible layout set in a prime location close to local attractions...
CCL are delighted to offer the opportunity to purchase the charming Ashbank Hotel. A family run hotel in the popular village of Carradale which is situated on the east coast of the Kintyre peninsula. Offering the warmest of welcomes and great service this charming hotel is popular with visitors t...
The subjects comprise a development opportunity which is irregular in shape. The site is generally level in nature and laid with grass. Title plans are available on application. The gross site extends to 1.64 acres / 0.66 hectares or thereby. It is understood that connections to mains water, ele...
The subjects comprise a development opportunity which is irregular in shape. The site is generally level in nature and laid with grass. Title plans are available on application. The gross site extends to 1.64 Acres / 0.66 Hectares or thereby.
Hill land at Saddell Home Farm. It extends to about 60 hectares (148.26 acres) which includes 1.9 hectares (4.69 acres) of native woodland. Surrounded to the north, west and south by commercial forestry plantations, there is potential for both commercial and native afforestation
This commercial premises and going concern is located on Tomaig Road, Campbeltown. The owners have run a successful auto repair business from this address for 34 years building up a great reputation locally. The property consists of a workshop, reception, office, store, toilet and a large (cont.)
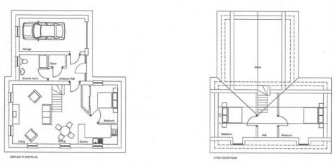
Presented here is a rare opportunity to acquire a superb individual plot with planning permission. It forms part of a small exclusive development of five building plots called Beinn Ghuilean View and is situated in the thriving Argyllshire town of Campbeltown. Plot one extends to approximately 0...
*** REDUCED PRICE *** Set in the heart of Carradale, Patersons bakery and shop is the perfect business opportunity for someone looking to live and work in a scenic and welcoming community. The stone built property has solid concrete floors throughout and consists of a shop, bakery, kitchen, (cont.)
Building plot (2) for sale South East of Kilmichael Farm, by Campbeltown, approximately .4 acre in size. Planning Permission in Principal ( Ref. number 20/00611/PPP) has been granted for the erection of a storey and a half dwelling house. The plot is offered for sale on an un-servi (cont.)
Building plot (1) for sale South East of Kilmichael Farm, by Campbeltown, approximately .4 of an acre Planning Permission in Principal ( Ref. number 20/00611/PPP) has been granted for the erection of a storey and a half dwelling house. The plot is offered for sale on an un-service (cont.)
*** New to the market *** Building Plot for sale of .358 acres at Auchencorvie Farm located behind Auchencorvie Cottages. Planning Permission in Principle (PPP) has been granted for the erection of a single storey dwelling house. The plot is offered for sale on an un-serviced basis, w (cont.)
*** REDUCED PRICE *** Building plot for sale south of Paterson's Bakery, 8 Airds, Carradale, Campbeltown that is situated in a quiet part of Carradale and within walking distance of local amenities. . Planning Permission in Principal ( Ref. number 22/00302/PPP) has been granted for t (cont.)

















