Commercial Properties For Sale in Oreham Common, Henfield, West Sussex
Paid partnerships can play a role in listing order
Situated just off Brighton Road in the charming village of Henfield, this exceptional barn conversion presents a remarkable opportunity for developers and investors alike. The site has received Class Q conversion approval from an existing barn, allowing for the creation of four stunning four-bedr...
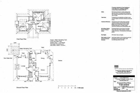
A rare opportunity to purchase a building plot to construct a two-bedroom detached chalet property situated on the Northern periphery of Henfield Village, close to local amenities and Countryside walks. Planning permission has been granted by Horsham District Council (Original Planning Ref DC/21/...