Commercial Properties For Sale in Spring View, Wigan, Greater Manchester
Pier House: An Iconic Multi-Tenant Office Space in Prime Wigan Location The refurbished mill stands proudly facing Wigan Pier. This unique blend of historic charm and modern functionality offers character and convenience for tenants. Investors benefit from a fully-let property...
Prime Development Opportunity - Large Block of Flats (For Sale by Auction) Presented by Rutter Green, this substantial block of flats offers an exceptional investment and development opportunity in the thriving heart of Wigan town centre facing Go Outdoors. The property is ideally positioned ...
Detached Property with Yard and Pavement Frontage Single Storey Unit Operating as a Chip Shop Potential to Increase Income as only operating 2.5 days per week (previously 5 days) In-Post Contract Unit iIncluded. (Rolling 12 months) Parking to the Roadside Sale Due to Retirement...
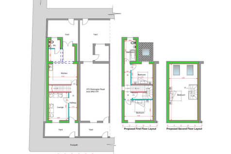
Located on Warrington Road in the charming area of Ince, Wigan, this property presents a unique opportunity for those looking to invest in a residential plot of land. Spanning approximately 970 square feet, this site comes with full planning permission, allowing for the development of a house tai...






















