Land For Sale in WN (Postcode Area)
AMAZING RESIDENTIAL DEVELOPMENT OPPORTUNITY. We are thrilled to present an extraordinary opportunity to acquire a detached property situated on a substantial and prominent plot, formerly known as Rectory Nurseries Garden Centre, in the heart of Ashton-in-Makerfield that has potential to build ...
The property is located fronting Chorley Road (A5106) on the eastern edge of Standish. The A5106 leads to Wigan Road A49 and via Almonds Brook Road (A5209) to Junction 27 of the M6 motorway. The property is irregular in shape and historically has been used for land fill purposes. In recent year...
The subject site is irregular in shape with access taken directly from Sandy Lane and currently comprises a single detached dwelling with a substantial garden and field area to the rear. The land is surrounded by existing housing and gardens, forming part of an established residential setting. T...
The land is to be sold as a single parcel and extends to approximately 9.87 acres, as scaled using the Nimbus Mapping System. The land is currently down to a 3 year lay of grass and is considered Grade 1. The field also benefits from having a canal frontage.
A former car park/storage yard with a hardcore surface and securely fenced with steel palisade. There is a double metal access gate. There are approximately 40-45 car parking spaces at the site. The plot could be utilised for other uses STPP.
The site, featuring a relatively regular shape and gently undulating topography, is prominently positioned fronting Challenge Way. This 3.6 acres (1.46 hectares) infill plot is bordered by a distribution warehouse to the west, motor trade uses to the east, Challenge Way to the north, and open lan...
The subject site is level and relatively regular in shape having direct access from Southgate (A577). The River Douglas sits to its southern and eastern boundaries and The Edge conference venue and Today's Community Church are to its northern boundary. The site is within the Wigan Pier regenerati...
The site extends to circa 1.55 acres (0.627 Hectares) is relatively level and regular in shape. The land is allocated for employment uses. Clients preference is to receive enquiries for this opportunity on a leasehold basis from occupiers that would consider entering into a pre-let agreement on ...
Regan & Hallworth are delighted to offer for sale an amazing opportunity to develop 2 barns in a truly remarkable semi-rural setting on the edge of the highly desirable area of Standish. The plot which extends to approximately 1 acre has planning permission to convert two large agricultural barn...
An excellent residential development opportunity on the edge of Leigh with planning consent granted to provide three detached, four-bed dwellings situated in 1.5 acres or thereabouts in a private setting close to the A580 and local amenities.
AMAZING RESIDENTIAL DEVELOPMENT OPPORTUNITY. We are thrilled to present an extraordinary opportunity to acquire a detached property situated on a substantial and prominent plot, formerly known as Rectory Nurseries Garden Centre, in the heart of Ashton-in-Makerfield that has potential to build ...
Development Opportunity – Full Planning Permission for 9 Apartments An exciting opportunity to acquire a prime development site with full planning permission (Ref: A/24/97754/FULL, granted 29th August 2025) for the demolition of the former Dover Lock Inn public house and the cons...
This is an amazing opportunity to develop a large barn into a luxury rural home in a truly remarkable setting on the edge of the vibrant area of Standish. There is planning permission to convert a large agricultural barn into 2 separate contemporary homes designed by an award winning architect wi...
Situated on one of the most desirable areas in the village of Shevington, Wigan. A plot of land comprising approximately 0.10 ha (0.24 ac) which has the benefit of Outline Planning Consent for 2 x detached residential properties. The consent allows for a two bedroom detached bun...
A plot of land which has previously had planning permission granted (although now expired) and more recently has had a planning application submitted for three detached properties, although this has not been progressed to the point of being granted, but could be used for other use subject to pla...
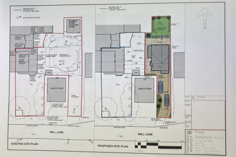
This parcel of land is available for sale on Mill Lane, Appley Bridge, Wigan. The site offers potential for development, approved plans for a three bed detached property. Located in a residential area, it provides convenient access to local amenities and transport links.
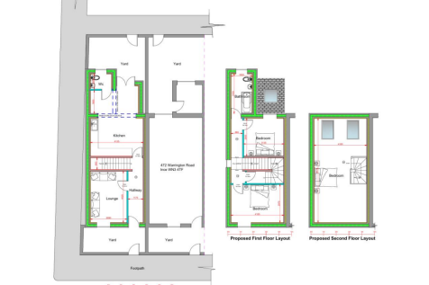
Located on Warrington Road in the charming area of Ince, Wigan, this property presents a unique opportunity for those looking to invest in a residential plot of land. Spanning approximately 970 square feet, this site comes with full planning permission, allowing for the development of a house tai...
TO BE OFFERED BY ONLINE AUCTION ON THE 15/10/2025 10:40 - Residential development land with planning for a detached 2 bedroom dormer bungalow The land extends to approximately 0.07 Acres and benefits from planning for the erection of a detached 2 bedroom bungalow. The permission was granted at a...
AN OPPORTUNITY TO ACQUIRE A PARCEL OF LAND WITH POTENTIAL FOR A VARIETY OF USES. Regan & Hallworth are delighted to offer for sale a prime plot of agricultural land extending to approximately 500sqm with enormous amenity / recreational potential including permitted development rights for camp...
This is an exceptionally rare chance to acquire parcels of land, with approximately 17 acres available, offering a variety of potential uses.Regan & Hallworth are excited to present a prime agricultural plot extending to just under 17 acres. This land offers significant amenity and recreational p...
TO BE SOLD BY ONLINE AUCTION ON 21ST JANUARY 2026 UNLESS SOLD PRIOR UNDER AUCTION TERMS.Land to Rear of 73 Leigh Road, Leigh, WN7 1QYA rectangular-shaped parcel of land to the rear of an existing row of houses, extending to approximately 0.05 acres (200 sq m).































