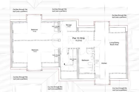
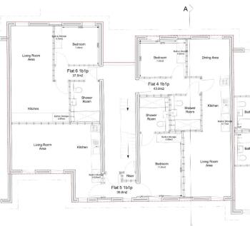
Commercial Properties For Sale in Wickford, Essex
The property comprises a plot of land measuring approximately 1.381 acres, situated directly off the A127 and accessed via a shared road. The yard has been predominantly surfaced with Type 1 material. The site has been used for the current owner's business operations for approximately 40 years,...
Light industrial/warehouse unit on 0.6 Acre Site with two front facing level access roller shutter doors leading to two bay warehouse split into two sections with part of the wall removed, and a minimum eaves height of 3.1.m rising to 4m. The property offers open plan office accommodation plus f...
Light industrial unit situated on the well established Wickford Business Park, Wickford. The property offers office accommodation plus kitchen & w/c facilities. A roller shutter provides access to the two rear warehouse areas and has an eaves height of 3.7m and an apex of 5.5 with a 3m opening...
Semi-detached warehouse/industrial unit partitioned into two sections (can be removed arranged to provide modern ground floor offices, with male and female WC facilities plus modern kitchen. The warehouse is serviced by front and rear level loading doors. Externally, forecourt staff & visitor pa...
Investment opportunity comprising a deceptively large, single storey, restaurant which has been fitted to an exceptionally high standard by the current tenants, along with a fully self-contained four-bedroom maisonette. The property is prominently positioned on the western side of Wick...
A charming Billericay property set upon approximately 1.5 acres, with kennels, outbuildings, huge lifestyle potential and rural charm- Close to Barleylands, rail to London, shows, parks and top Essex countryside.A Rare Country Opportunity on the Edge of Billericay:Tucked away dow...
FOR SALE BY PUBLIC AUCTION ON WEDNESDAY, 3RD DECEMBER 2025 AT 12.00PM NOON. LIVE STREAMED VIA DEDMAN GRAY WEBSITE. BIDDING AVAILABLE BY TELEPHONE, PROXY AND ONLINE; COMMERCIAL WAREHOUSE: A VACANT LEASEHOLD INDUSTRIAL UNIT WITH A REAR YARD MEASURING 5,527 SQ.FT LOCATED ON AN ESTABLISHED BUSINESS PARK






























