17 results
Paid partnerships can play a role in listing order
FREEHOLD FOR SALE - 1.41 acre roadside site with car showroom, offices, workshop and forecourts (potential for redevelopment STPC)
Office premises with wide scope for redevelopment for alternative uses (STP).
FREEHOLD INDUSTRIAL/WAREHOUSE FOR SALE
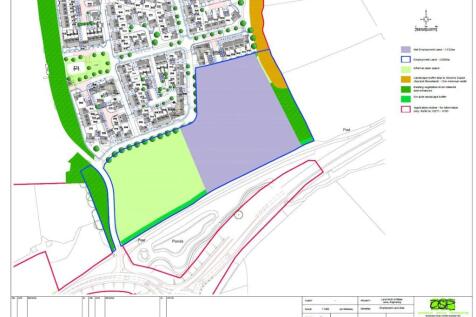
Commercial Development Land for Sale, Consent for Class B1 Use (Other Uses Considered STPC)
Freehold For Sale - Former education / medical health clinic
Freehold for sale - religious hall premises with 80 car parking spaces on a 0.75 acre site. Development potential (SPC)
Freehold Prominent Detached Industrial Unit with Secure Rear Yard
FREEHOLD SITE FOR SALE Vacant former school premises suitable for alternative uses/development potential Suit owner occupier (STP)
The unit comprises a mid-terrace building comprising of three similar modern units. Car parking is at the front of the unit.
Industrial / Workshop premises for sale suitable for motor repairs/MOT testing Approx. 8,750 SQ FT
Office For Sale or To Let on the Manor Royal
0.55 acre DEVELOPMENT SITE
New Build Light Industrial / Warehouse Units – Freehold For Sale
Fantastic Mixed Use Development Opportunity on 12 Acres
Unconditional offers for the freehold interest being sought but consideration given to subject to planning offers
Freehold Premises with significant development potential (STP)
New Build Ground Floor Community Centre, Located Within New Residential Development TO LET / FOR SALE – Offers Invited 2,723 sq ft (253m2)
Copyright © 2000-2025 Rightmove Group Limited. All rights reserved. Rightmove prohibits the scraping of its content. You can find further details here.