Commercial Properties To Let in AB23
Secure Storage Yard extending to 0.88 acres/0.35 acres The yard is situated approximately 5 miles north of Aberdeen city centre within the Blackdog Industrial Estate. The subjects are accessed off the main A92 dual carriageway linking Aberdeen to Peterhead. The site also has access to the Aber...
The Horizon Centre comprises a detached industrial unit with two storey offices to the front and secure yard facilities. The unit is of steel portal frame construction under a pitched roof finished with insulated profile metal clad sheeting above. Workshop The workshop building dates from 1990, ...
Range of flexible accommodation solutions which can be specifically tailored to meet individual organisations’ business needs. Range of flexible accommodation solutions which can be specifically tailored to meet individual organisations' business needs. The Aberdeen Energy Park situated in th...
The subjects comprise mid-terraced industrial unit of steel portal frame construction off a concrete floor under a pitched roof. The roof has recently been replaced across the entire terrace. The subjects benefit from an eaves height of approx. 5.5 metres and one large electric roller shutter do...
Terraced warehouses in whole or part, with cranes and laydown space Per sq ft £8.24 per sq ft The property is a terraced industrial facility, with the opportunity to split, featuring ancillary office accommodation and staff welfare. The property benefits from laydown space to th...
This modern detached warehouse benefits from an office provision along with a reasonable outdoor yard. Situated in a great location with convenient access to major transport routes, it caters to a variety of business needs. Dedicated parking is also available.
Detached warehouse with office accommodation and yard The property comprises a detached warehouse with impressive open plan office accommodation and yard to the rear. The warehouse is of steel portal frame construction with concrete blockwork externally harled and profile metal cladding above an...
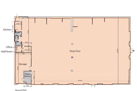
End Terrace warehouse with 0.5 acre yard space available in whole or part The property comprises a terraced industrial unit of steel portal frame and concrete block construction. The warehouse includes office accommodation and staff welfare on the ground floor, with a mezzanine level above. Th...
Flexible office space with generous car parking. The Hub, a 4,844 sq ft office space, offers a creative and inspiring working environment. Designed to accommodate over 30 people with ease, it features a modern kitchen, showers, a spacious training room and bespoke collaboration and meeting areas...
This distinctive commercial property features custom-designed collaboration and presentation spaces, perfect for a team of 30. Located in a vibrant area, it promotes creativity and effective training, showcasing modern amenities and stylish aesthetics that enhance productivity and innovation.

































































































